|
Instituto del Patrimonio Cultural de España
»
Planoteca
»
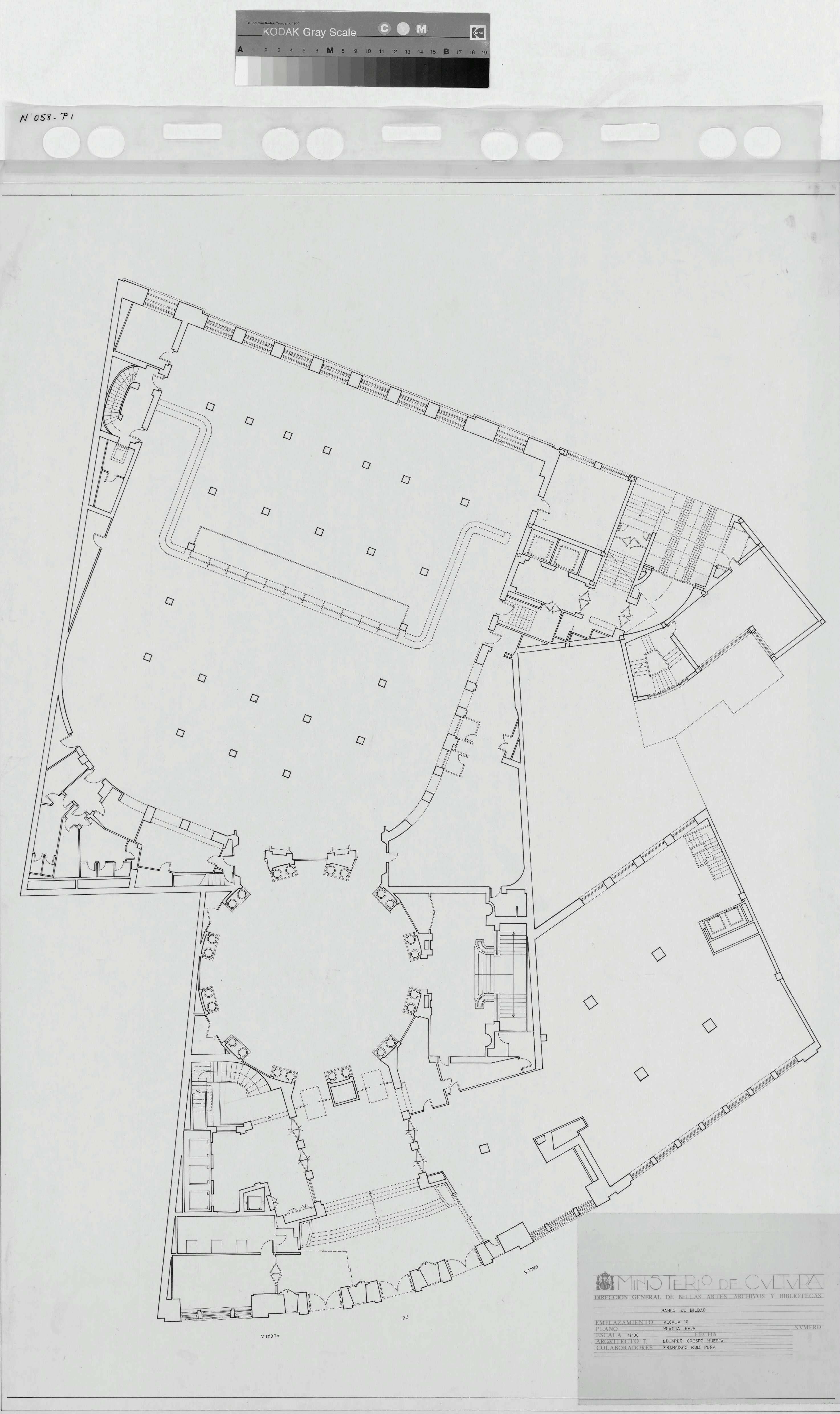
BANCO DE BILBAO: PLANTA BAJA. Plano general del edificio, con emplazamiento a la Calle Alcalá, dibujado con detalle, plano sin cotas.
|
|
|
|
BANCO DE BILBAO: PLANTA BAJA. Plano general del edificio, con emplazamiento a la Calle Alcalá, dibujado con detalle, plano sin cotas.
Fechas extremas
9999, septiembre, 9
Signatura
PLM ARCH 100 58 / 1
Tipología documental
Plano
Signatura digital
Nº de Imagen: 04886 Nº de Disco TIFF: 0121 Nº de Disco JPEG: 0001 Nº de Disco DJVU: 0001
BANCO DE BILBAO: PLANTA BAJA. Plano general del edificio, con emplazamiento a la Calle Alcalá, dibujado con detalle, plano sin cotas.
|