|
Instituto del Patrimonio Cultural de España
»
Planoteca
»
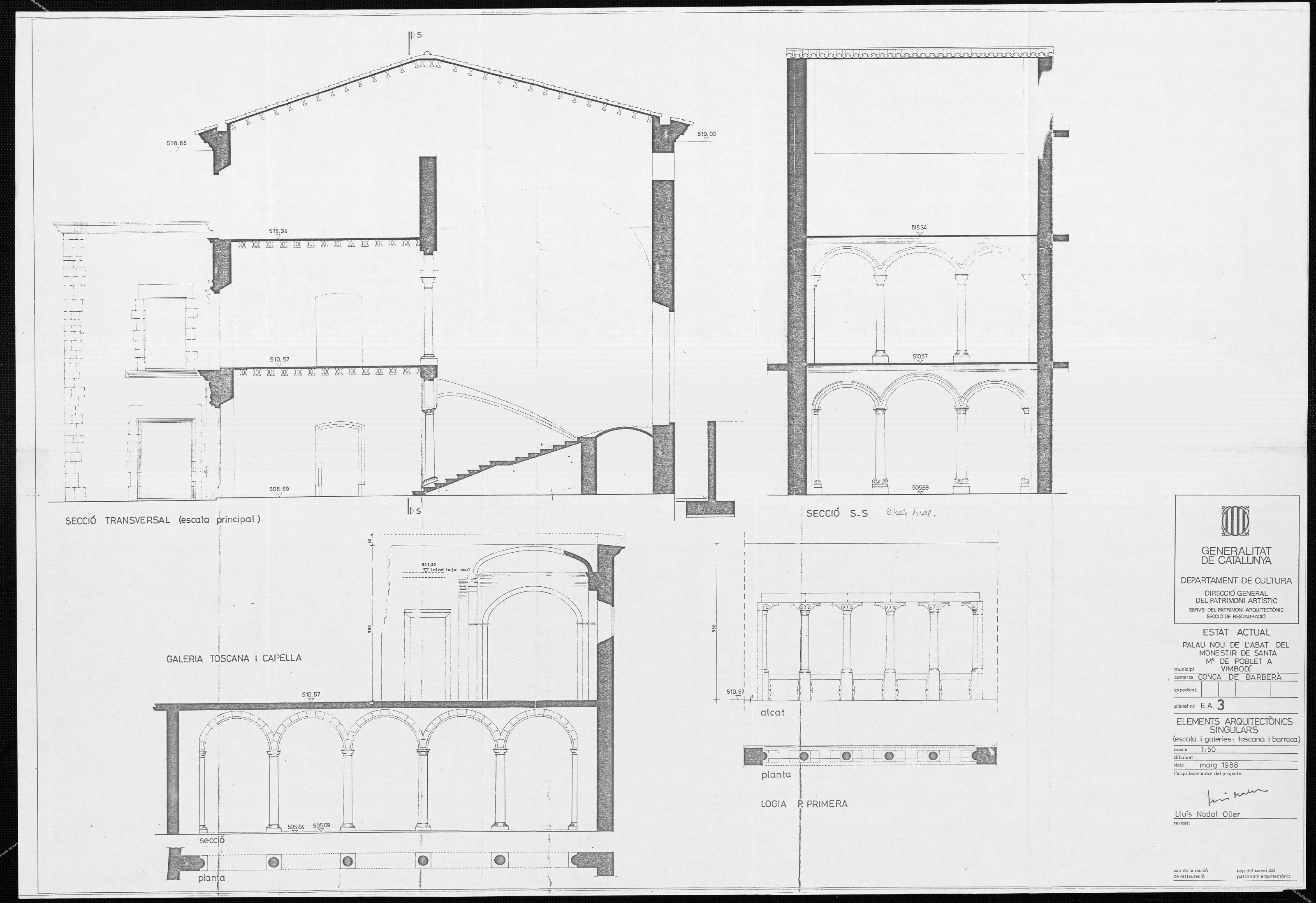
PALACIO NUEVO DEL ABAD DEL MONASTERIO DE POBLET A VIMBODI: PLANO Nº E.A.3. ELEMENTOS ARQUITECTONICOS SINGULARES
|
|
|
|
PALACIO NUEVO DEL ABAD DEL MONASTERIO DE POBLET A VIMBODI: PLANO Nº E.A.3. ELEMENTOS ARQUITECTONICOS SINGULARES
Fechas extremas
1988, enero, 1
Signatura
PLM CAJA 9 220 / 1729
Tipología documental
Plano
Signatura digital
Nº de Imagen: 09715 Nº de Disco TIFF: 0264 Nº de Disco JPEG: 0003 Nº de Disco DJVU: 0001
PALACIO NUEVO DEL ABAD DEL MONASTERIO DE POBLET A VIMBODI: PLANO Nº E.A.3. ELEMENTOS ARQUITECTONICOS SINGULARES
|