|
Instituto del Patrimonio Cultural de España
»
Planoteca
»
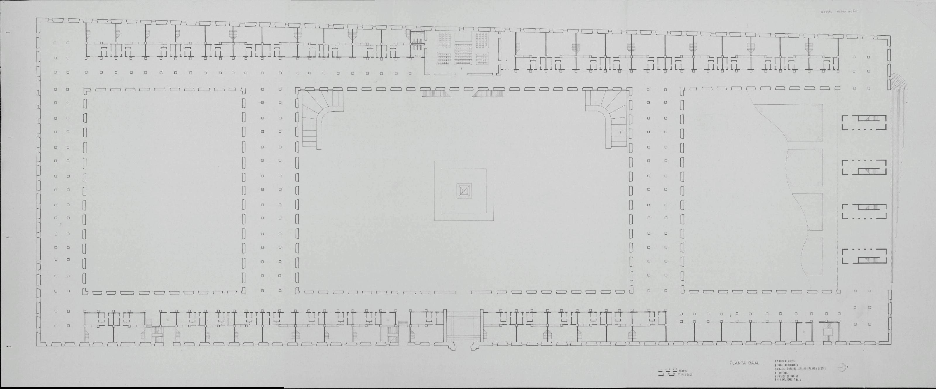
LAS PLAZAS DEL CONDE DUQUE: PLANTA BAJA
|
|
|
|
LAS PLAZAS DEL CONDE DUQUE: PLANTA BAJA
Fechas extremas
9999, septiembre, 9
Signatura
PLM CAJA 9 221 / 1738
Tipología documental
Plano
Signatura digital
Nº de Imagen: 09724 Nº de Disco TIFF: 0264 Nº de Disco JPEG: 0003 Nº de Disco DJVU: 0001
LAS PLAZAS DEL CONDE DUQUE: PLANTA BAJA
|