|
Instituto del Patrimonio Cultural de España
»
Planoteca
»
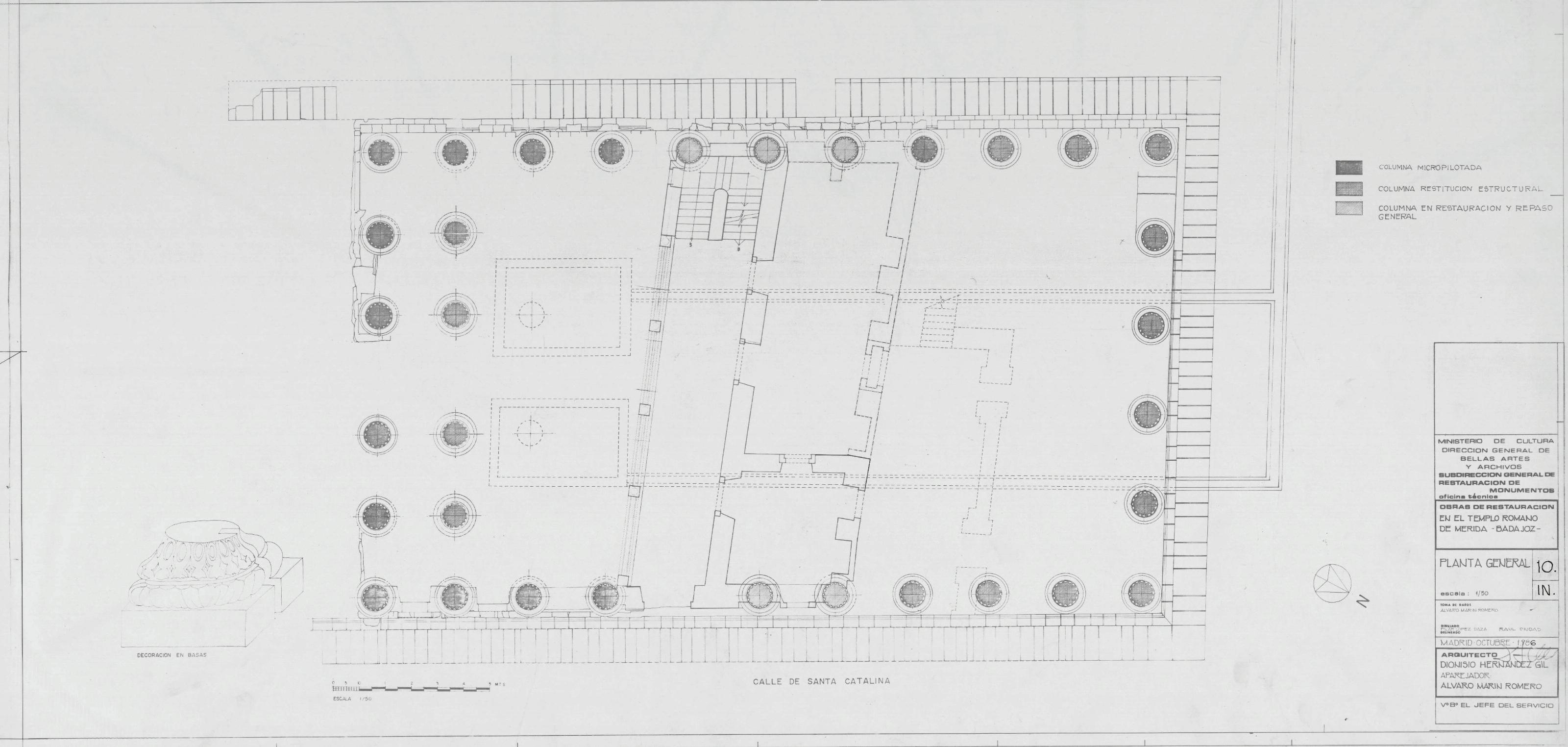
OBRAS DE RESTAURACION EN EL TEMPLO ROMANO DE MERIDA (Badajoz): PLANTA GENERAL Especificando con diferentes rallados las columnas micropilotadas, las de restitución estructural y las de restauración y repaso general Con detalle de decoración en basas Con escala gráfica y Firmado
|
|
|
|
OBRAS DE RESTAURACION EN EL TEMPLO ROMANODE MERIDA (Badajoz): PLANTA GENERALEspecificando con diferentes rallados las columnas micropilotadas, las de restitución estructural y las de restauración y repaso generalCon detalle de decoración en basasCon escala gráfica y Firmado
Fechas extremas
1986, enero, 1
Signatura
PLM ARCH 5 403 / 57
Tipología documental
Plano
Signatura digital
Nº de Imagen: 02312 Nº de Disco TIFF: 0070 Nº de Disco JPEG: 0001 Nº de Disco DJVU: 0001
OBRAS DE RESTAURACION EN EL TEMPLO ROMANODE MERIDA (Badajoz): PLANTA GENERALEspecificando con diferentes rallados las columnas micropilotadas, las de restitución estructural y las de restauración y repaso generalCon detalle de decoración en basasCon escala gráfica y Firmado
|