|
Instituto del Patrimonio Cultural de España
»
Planoteca
»
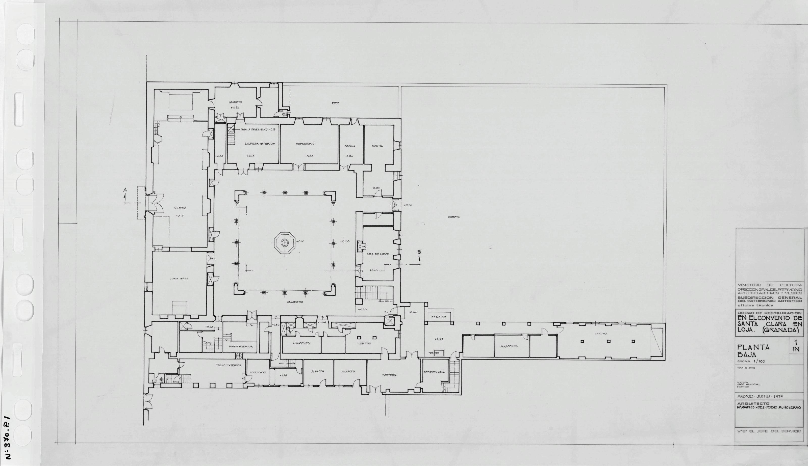
CONVENTO DE SANTA CLARA - GRANADA-: PLANTA BAJA, planta de distribucion, señala cotas de alturas, marca todas las dependencias del convento, plano sin cotas.
|
|
|
|
CONVENTO DE SANTA CLARA - GRANADA-: PLANTA BAJA, planta de distribucion, señala cotas de alturas, marca todas las dependencias del convento, plano sin cotas.
Fechas extremas
1979, enero, 1
Signatura
PLM ARCH 5 370 / 1
Tipología documental
Plano
Signatura digital
Nº de Imagen: 01973 Nº de Disco TIFF: 0064 Nº de Disco JPEG: 0001 Nº de Disco DJVU: 0001
CONVENTO DE SANTA CLARA - GRANADA-: PLANTA BAJA, planta de distribucion, señala cotas de alturas, marca todas las dependencias del convento, plano sin cotas.
|