|
Instituto del Patrimonio Cultural de España
»
Planoteca
»
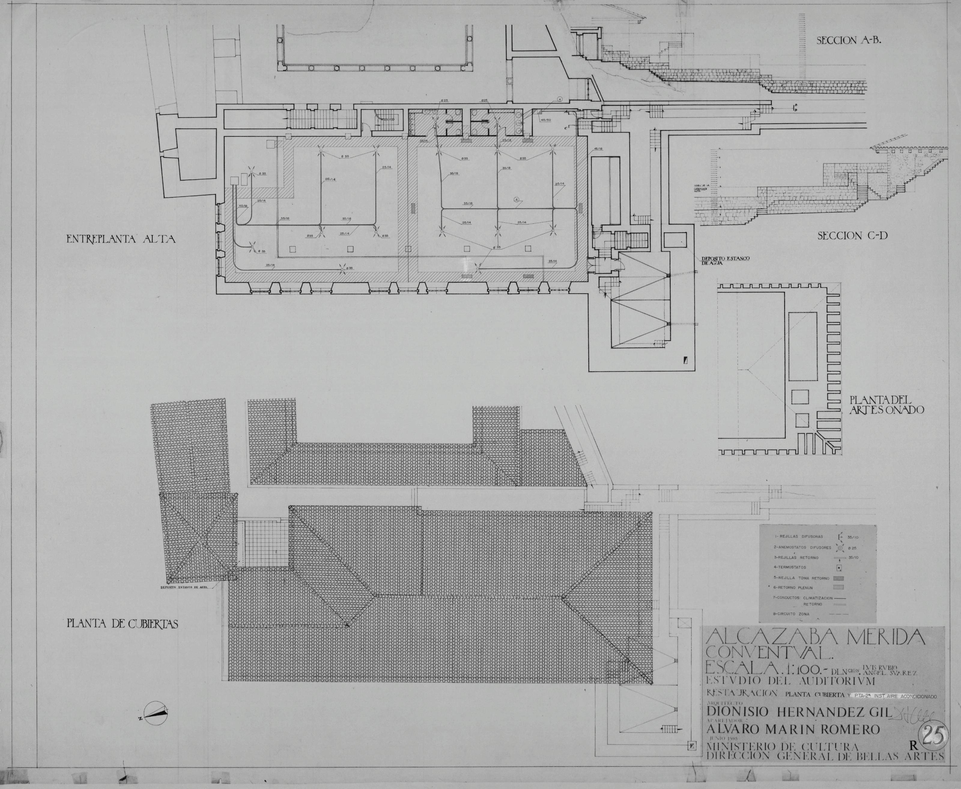
ALCAZABA DE MERIDA (Badajoz) Estudio del Auditorium: PLANTA SEGUNDA Y PLANTA DE CUBIERTA - Restauración - Instalación Aire Acondicionado Con red de conductos y medida de rejillas. Marcando el retorno. Además de esta planta consta de una zona en planta de artesonado, dos secciones dadas por escaleras de acceso y planta de cubierta. Firmado
|
|
|
|
ALCAZABA DE MERIDA (Badajoz) Estudio del Auditorium: PLANTA SEGUNDA Y PLANTA DE CUBIERTA - Restauración - Instalación Aire Acondicionado Con red de conductos y medida de rejillas. Marcando el retorno. Además de esta planta consta de una zona en planta de artesonado, dos secciones dadas por escaleras de acceso y planta de cubierta. Firmado
Fechas extremas
9999, septiembre, 9
Signatura
PLM ARCH 3 458 / 31
Tipología documental
Plano
Signatura digital
Nº de Imagen: 00711 Nº de Disco TIFF: 0017 Nº de Disco JPEG: 0001 Nº de Disco DJVU: 0001
ALCAZABA DE MERIDA (Badajoz) Estudio del Auditorium: PLANTA SEGUNDA Y PLANTA DE CUBIERTA - Restauración - Instalación Aire Acondicionado Con red de conductos y medida de rejillas. Marcando el retorno. Además de esta planta consta de una zona en planta de artesonado, dos secciones dadas por escaleras de acceso y planta de cubierta. Firmado
|