|
Instituto del Patrimonio Cultural de España
»
Planoteca
»
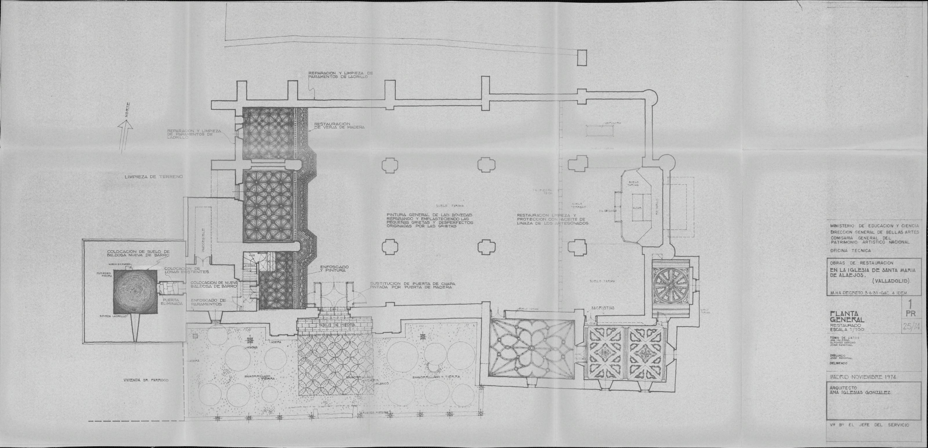
IGLESIA DE SANTA MARIA: PLANTA GENERAL
|
|
|
|
IGLESIA DE SANTA MARIA: PLANTA GENERAL
Fechas extremas
1974, enero, 1
Signatura
PLM CAJA 6 119 / 1326
Tipología documental
Plano
Signatura digital
Nº de Imagen: 09326 Nº de Disco TIFF: 0255 Nº de Disco JPEG: 0003 Nº de Disco DJVU: 0001
IGLESIA DE SANTA MARIA: PLANTA GENERAL
|