|
Instituto del Patrimonio Cultural de España
»
Planoteca
»
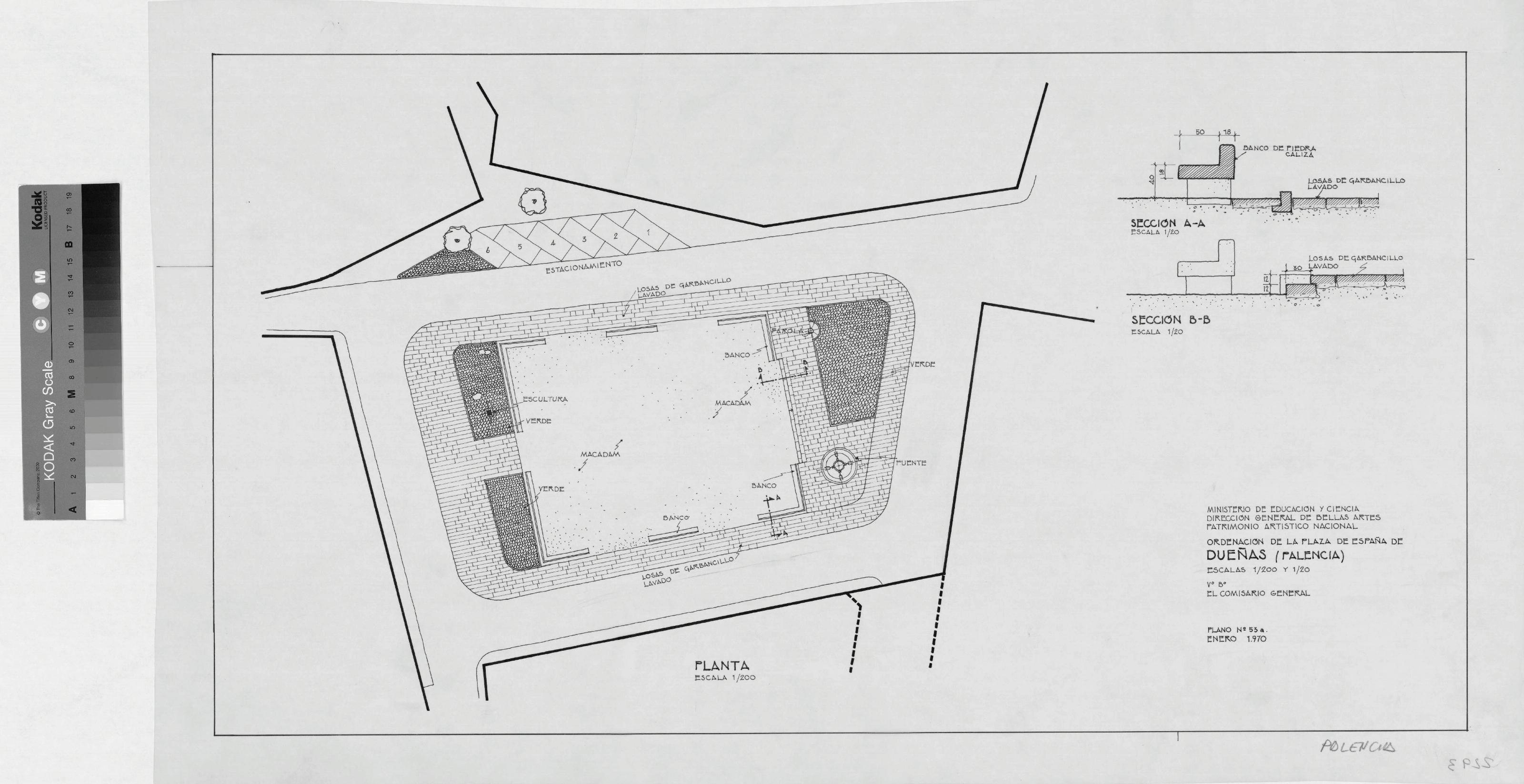
ORDENACION PLAZA DE ESPAÑA: ALZADO SECCIONES: A-A, B-B Y PLANO DE SITCION
|
|
|
|
ORDENACION PLAZA DE ESPAÑA: ALZADO SECCIONES: A-A, B-B Y PLANO DE SITCION
Fechas extremas
1970, enero, 1
Signatura
PLM CAJA 17 515 / 2293
Tipología documental
Plano
Signatura digital
Nº de Imagen: 10264 Nº de Disco TIFF: 0273 Nº de Disco JPEG: 0003 Nº de Disco DJVU: 0001
ORDENACION PLAZA DE ESPAÑA: ALZADO SECCIONES: A-A, B-B Y PLANO DE SITCION
|