|
Instituto del Patrimonio Cultural de España
»
Planoteca
»
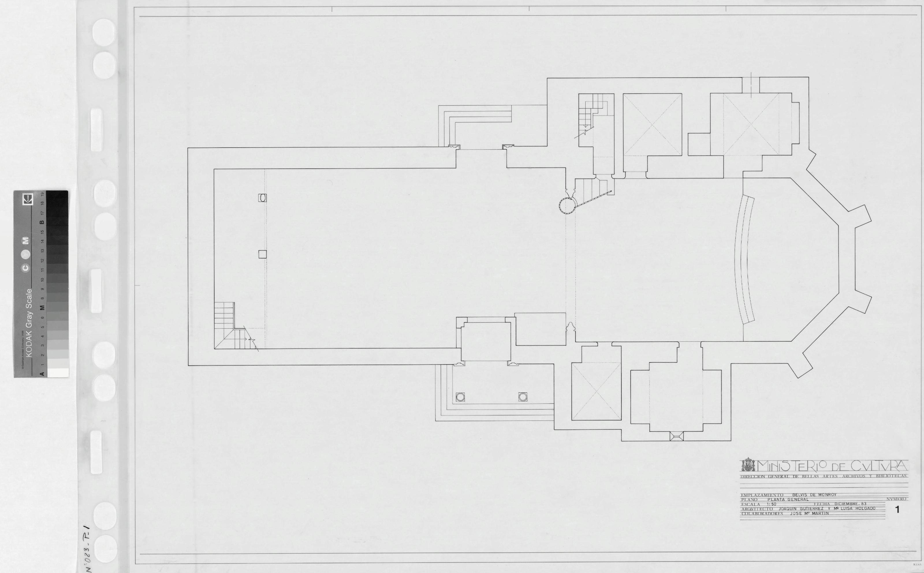
IGLESIA PARROQUIAL DE SANTIAGO EN BELVIS DE MONROY: PLANTA GENERAL DE LA IGLESIA SIN DENOMINACION DE USOS NI COTAS. PLANO REALIZADO POR PERSONAL CONTRATADO POR EL INEM.
|
|
|
|
IGLESIA PARROQUIAL DE SANTIAGO EN BELVIS DE MONROY: PLANTA GENERAL DE LA IGLESIA SIN DENOMINACION DE USOS NI COTAS. PLANO REALIZADO POR PERSONAL CONTRATADO POR EL INEM.
Fechas extremas
1983, enero, 1
Signatura
PLM ARCH 100 23 / 1
Tipología documental
Plano
Signatura digital
Nº de Imagen: 04661 Nº de Disco TIFF: 0116 Nº de Disco JPEG: 0001 Nº de Disco DJVU: 0001
IGLESIA PARROQUIAL DE SANTIAGO EN BELVIS DE MONROY: PLANTA GENERAL DE LA IGLESIA SIN DENOMINACION DE USOS NI COTAS. PLANO REALIZADO POR PERSONAL CONTRATADO POR EL INEM.
|