|
Instituto del Patrimonio Cultural de España
»
Planoteca
»
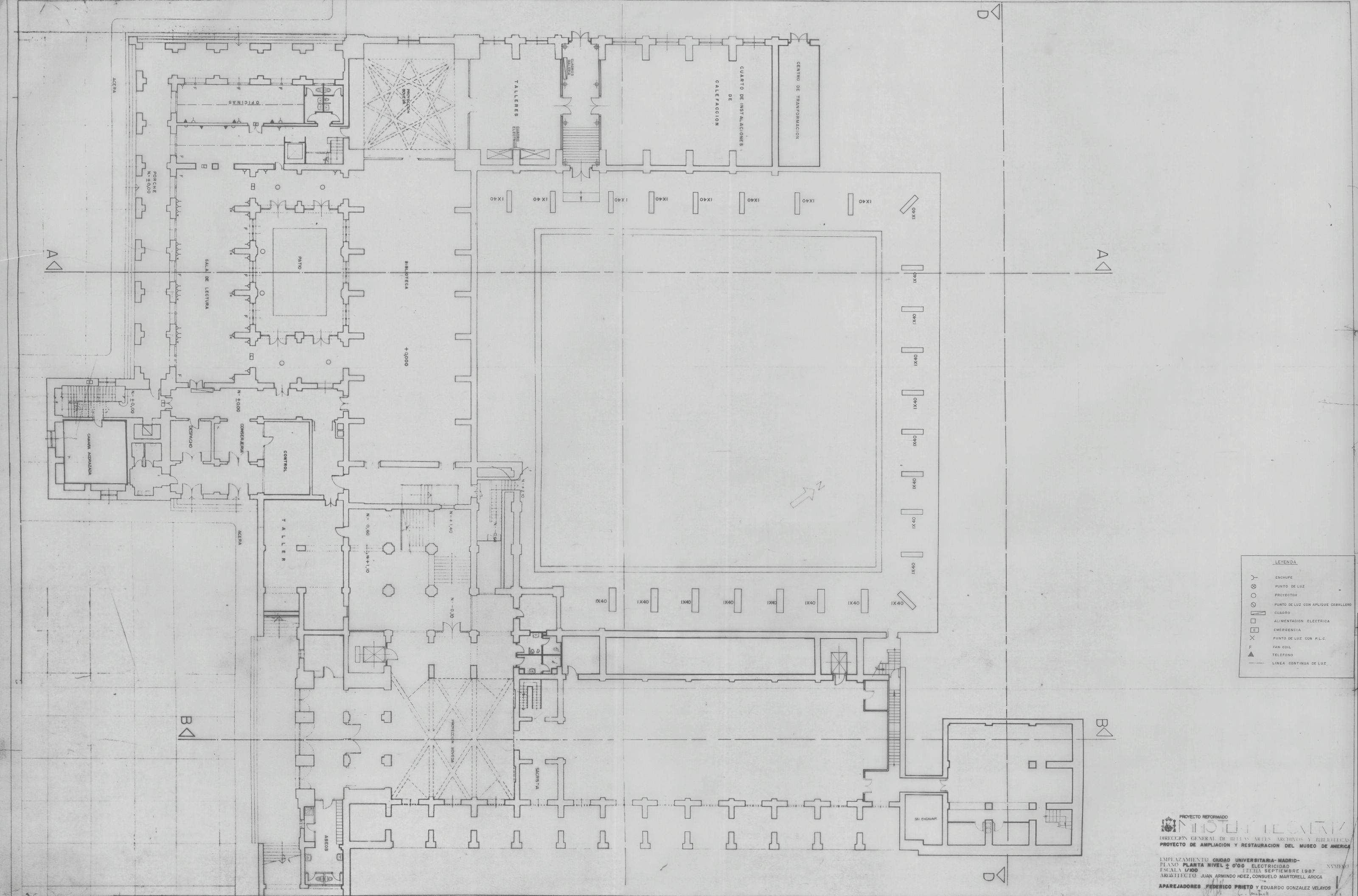
MUSEO DE AMERICA: PLANTA NIVEL ±0'00. ELECTRICIDAD
|
|
|
|
MUSEO DE AMERICA: PLANTA NIVEL ±0'00. ELECTRICIDAD
Fechas extremas
1987, enero, 1
Signatura
PLM CAJA 26 612 / 3814
Tipología documental
Plano
Signatura digital
Nº de Imagen: 11959 Nº de Disco TIFF: 0303 Nº de Disco JPEG: 0003 Nº de Disco DJVU: 0001
MUSEO DE AMERICA: PLANTA NIVEL ±0'00. ELECTRICIDAD
|