|
Instituto del Patrimonio Cultural de España
»
Planoteca
»
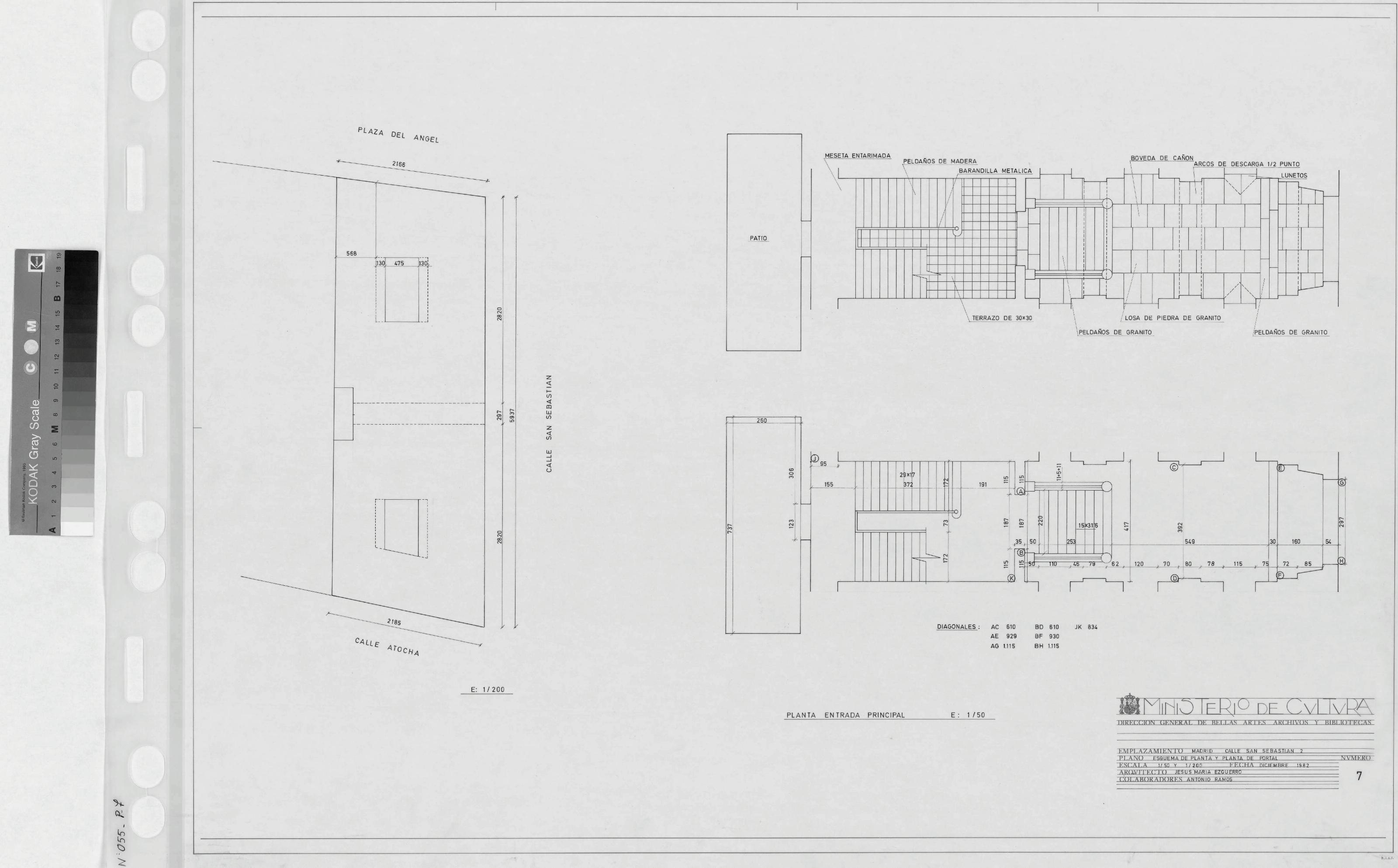
PALACIO DEL CONDE DE TEPA - MADRID-: ESQUEMA DE PLANTA Y PLANTA DE PORTAL ACOTADO, Plano de detalles, Emplazamiento a calle de San Sebastian nº 2.
|
|
|
|
PALACIO DEL CONDE DE TEPA - MADRID-: ESQUEMA DE PLANTA Y PLANTA DE PORTAL ACOTADO, Plano de detalles, Emplazamiento a calle de San Sebastian nº 2.
Fechas extremas
1982, enero, 1
Signatura
PLM ARCH 100 55 / 7
Tipología documental
Plano
Signatura digital
Nº de Imagen: 04871 Nº de Disco TIFF: 0121 Nº de Disco JPEG: 0001 Nº de Disco DJVU: 0001
PALACIO DEL CONDE DE TEPA - MADRID-: ESQUEMA DE PLANTA Y PLANTA DE PORTAL ACOTADO, Plano de detalles, Emplazamiento a calle de San Sebastian nº 2.
|