|
Instituto del Patrimonio Cultural de España
»
Planoteca
»
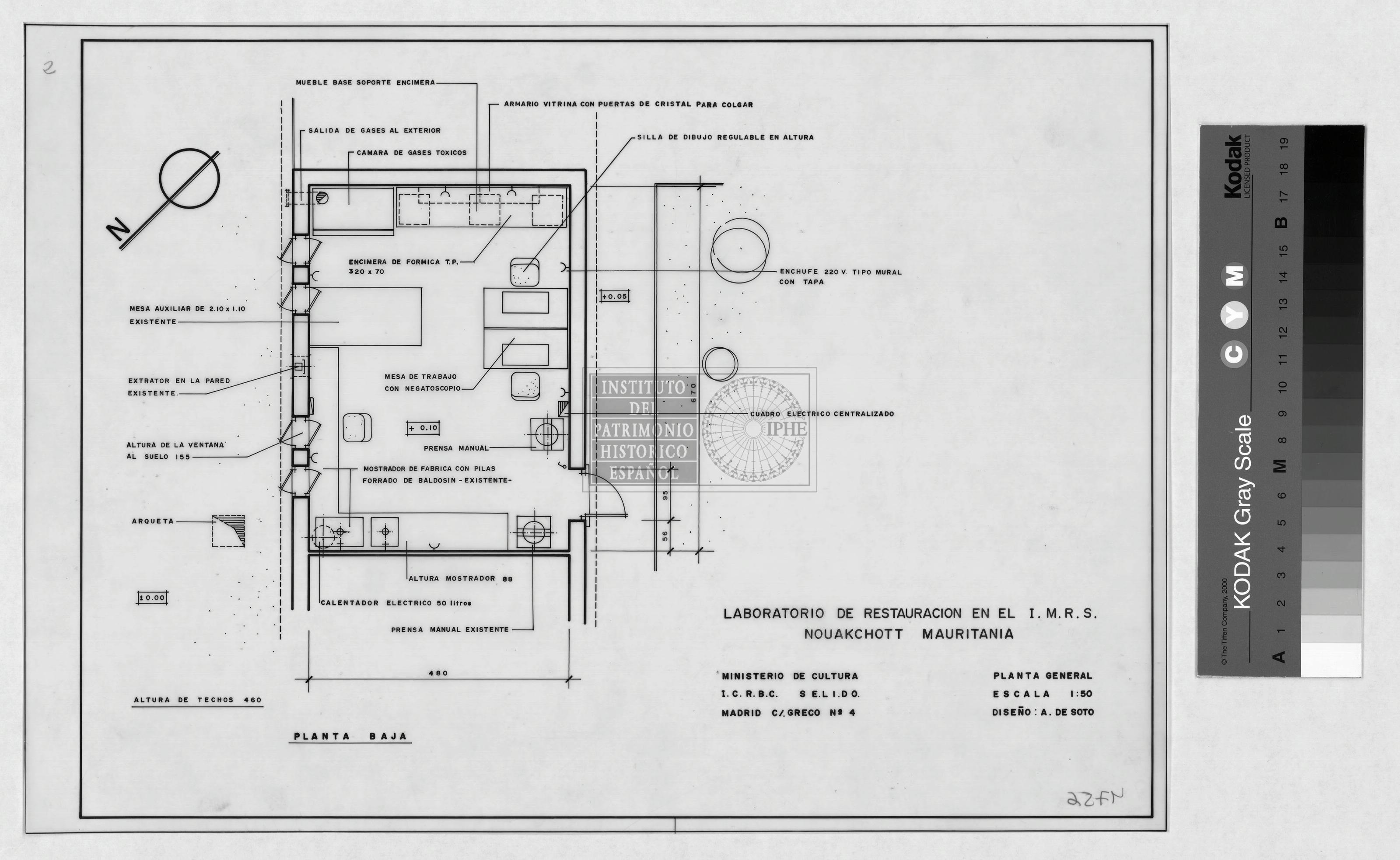
LABORATIRIO DE RESTAURACION EN EL I.M.R.S: PLANTAS: GENERAL Y BAJA
|
|
|
|
LABORATIRIO DE RESTAURACION EN EL I.M.R.S: PLANTAS: GENERAL Y BAJA
Fechas extremas
9999, septiembre, 9
Signatura
PLM CAJA 30 967 / 4756
Tipología documental
Plano
Signatura digital
Nº de Imagen: 18671 Nº de Disco TIFF: HD Nº de Disco JPEG: 0006 Nº de Disco DJVU: 0002
LABORATIRIO DE RESTAURACION EN EL I.M.R.S: PLANTAS: GENERAL Y BAJA
|