|
Instituto del Patrimonio Cultural de España
»
Planoteca
»
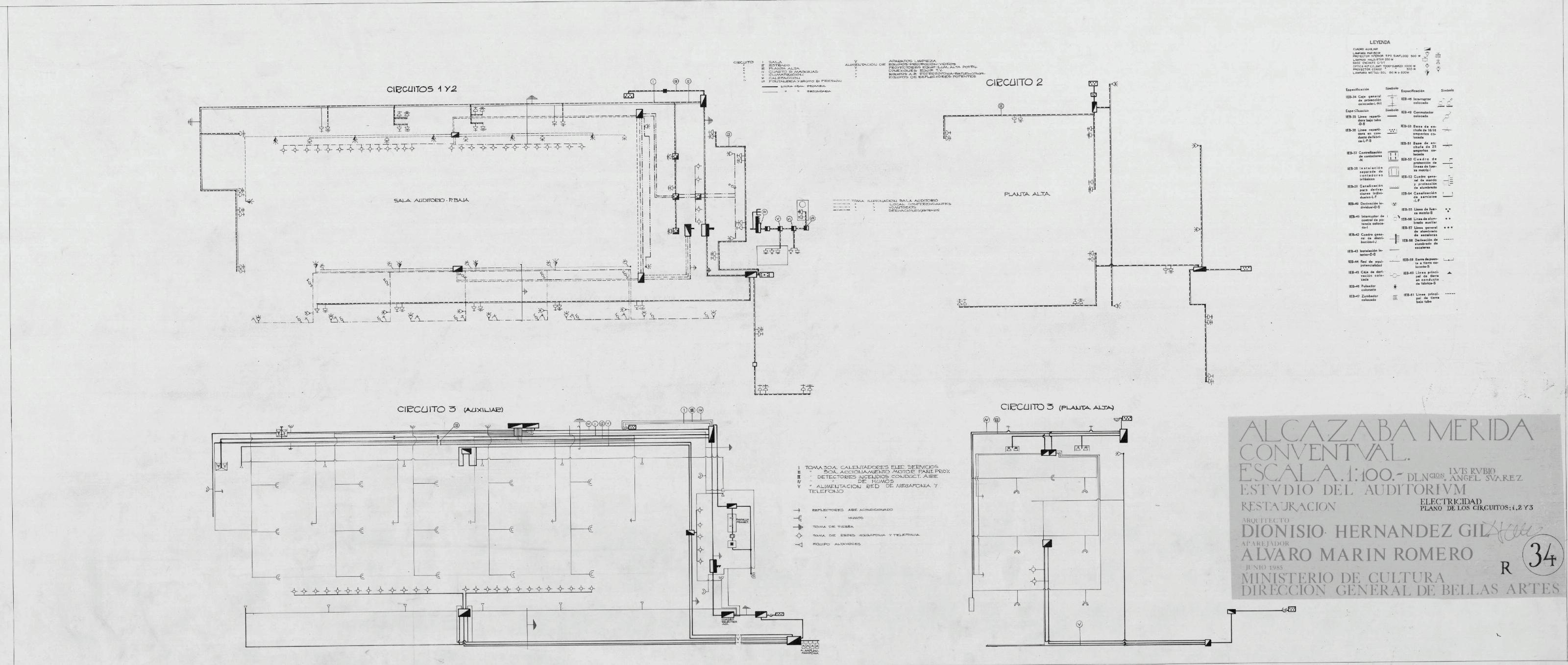
ALCAZABA DE MERIDA (Badajoz) Estudio del Auditorium: ELECTRICIDAD - Restauración - CIRCUITOS 1, 2 y 3 Con Leyenda. Bastante detallado con circuitos, potencias y tomas. Con denominación de usos a los que se destina cada red. Firmado
|
|
|
|
ALCAZABA DE MERIDA (Badajoz) Estudio del Auditorium: ELECTRICIDAD - Restauración - CIRCUITOS 1, 2 y 3 Con Leyenda. Bastante detallado con circuitos, potencias y tomas. Con denominación de usos a los que se destina cada red. Firmado
Fechas extremas
9999, septiembre, 9
Signatura
PLM ARCH 3 458 / 40
Tipología documental
Plano
Signatura digital
Nº de Imagen: 00720 Nº de Disco TIFF: 0017 Nº de Disco JPEG: 0001 Nº de Disco DJVU: 0001
ALCAZABA DE MERIDA (Badajoz) Estudio del Auditorium: ELECTRICIDAD - Restauración - CIRCUITOS 1, 2 y 3 Con Leyenda. Bastante detallado con circuitos, potencias y tomas. Con denominación de usos a los que se destina cada red. Firmado
|