|
Instituto del Patrimonio Cultural de España
»
Planoteca
»
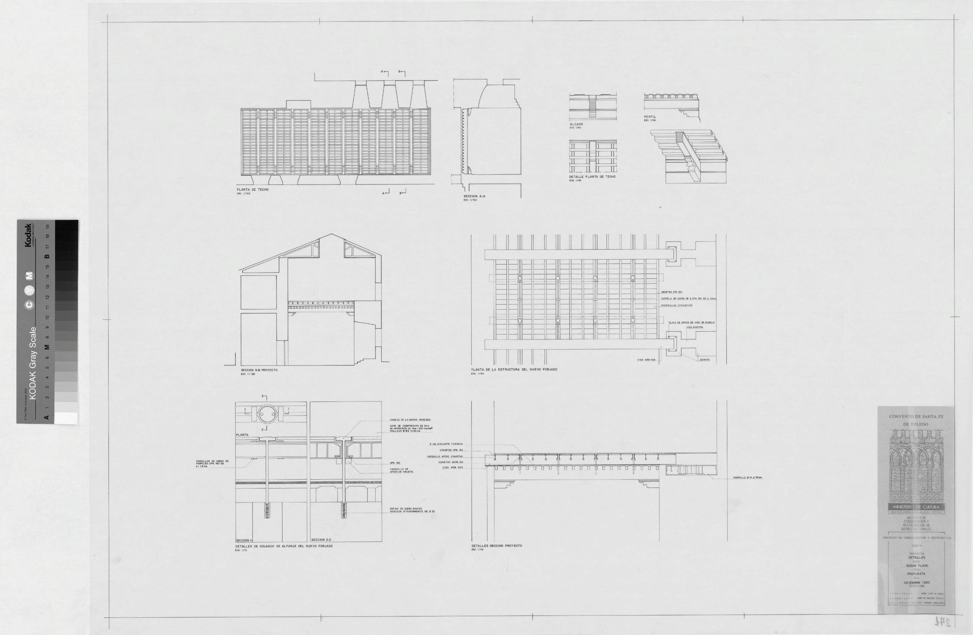
CONVENTO DE SANTA FE: DETALLES
|
|
|
|
CONVENTO DE SANTA FE: DETALLES
Fechas extremas
1990, enero, 1
Signatura
PLM CAJA 2 15 / 271
Tipología documental
Plano
Signatura digital
Nº de Imagen: 08328 Nº de Disco TIFF: 0241 Nº de Disco JPEG: 0002 Nº de Disco DJVU: 0001
CONVENTO DE SANTA FE: DETALLES
|