|
Instituto del Patrimonio Cultural de España
»
Planoteca
»
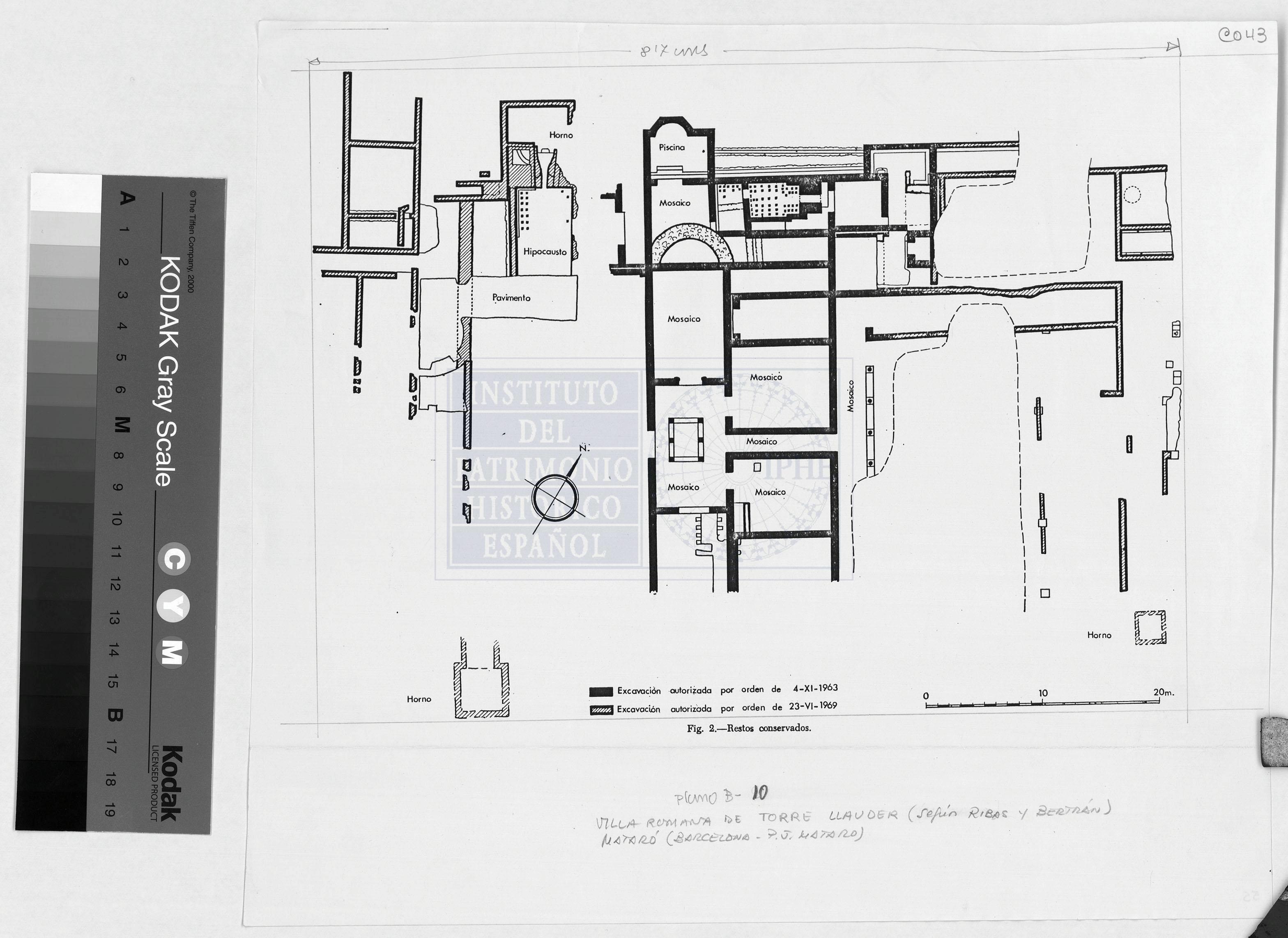
VILLA ROMANA TORRE LLAUDER: PLANO DE PLANTA
|
|
|
|
VILLA ROMANA TORRE LLAUDER: PLANO DE PLANTA
Fechas extremas
9999, septiembre, 9
Signatura
IPA BARCE 8 / 55
Tipología documental
Plano
Signatura digital
Nº de Imagen: 12267 Nº de Disco TIFF: HD Nº de Disco JPEG: 0004 Nº de Disco DJVU: 0002
VILLA ROMANA TORRE LLAUDER: PLANO DE PLANTA
|