|
Instituto del Patrimonio Cultural de España
»
Planoteca
»
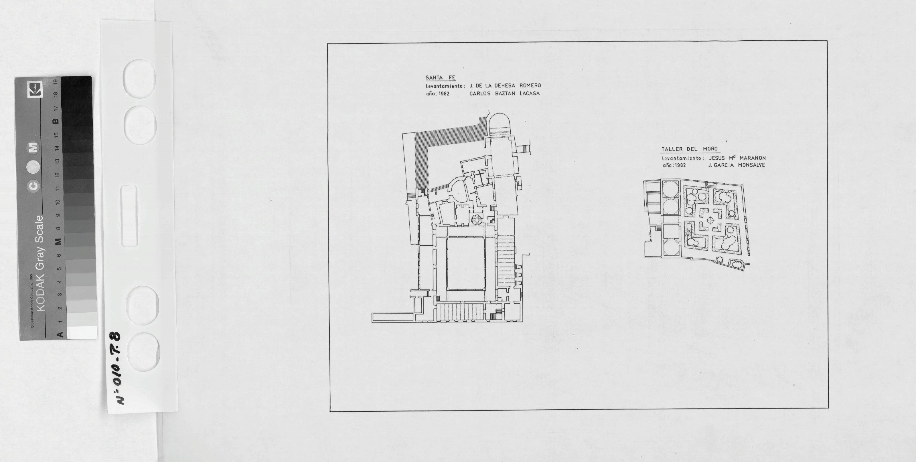
TALLER DEL MORO: PLANTA. PLANTA DE SANTA FE
|
|
|
|
TALLER DEL MORO: PLANTA. PLANTA DE SANTA FE
Fechas extremas
1982, enero, 1
Signatura
PLM ARCH 100 10 / 8
Tipología documental
Plano
Signatura digital
Nº de Imagen: 04535 Nº de Disco TIFF: 0114 Nº de Disco JPEG: 0001 Nº de Disco DJVU: 0001
TALLER DEL MORO: PLANTA. PLANTA DE SANTA FE
|