|
Instituto del Patrimonio Cultural de España
»
Planoteca
»
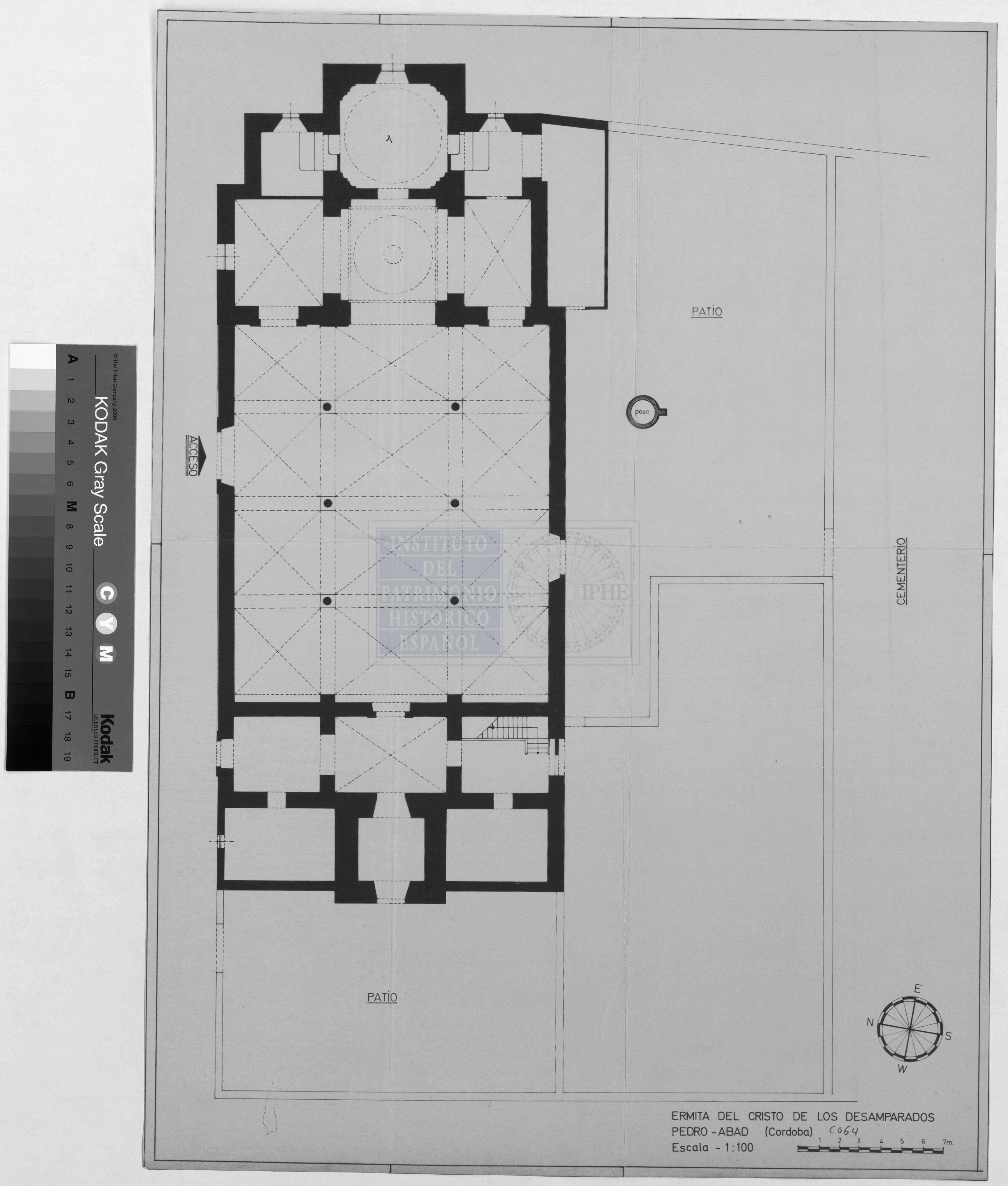
ERMITA DEL CRISTO DE LOS DESAMPARADOS: PLANO DE PLANTA
|
|
|
|
ERMITA DEL CRISTO DE LOS DESAMPARADOS: PLANO DE PLANTA
Fechas extremas
9999, septiembre, 9
Signatura
IPA CORDO 14 / 142
Tipología documental
Plano
Signatura digital
Nº de Imagen: 13525 Nº de Disco TIFF: HD Nº de Disco JPEG: 0004 Nº de Disco DJVU: 0002
ERMITA DEL CRISTO DE LOS DESAMPARADOS: PLANO DE PLANTA
|