|
Instituto del Patrimonio Cultural de España
»
Planoteca
»
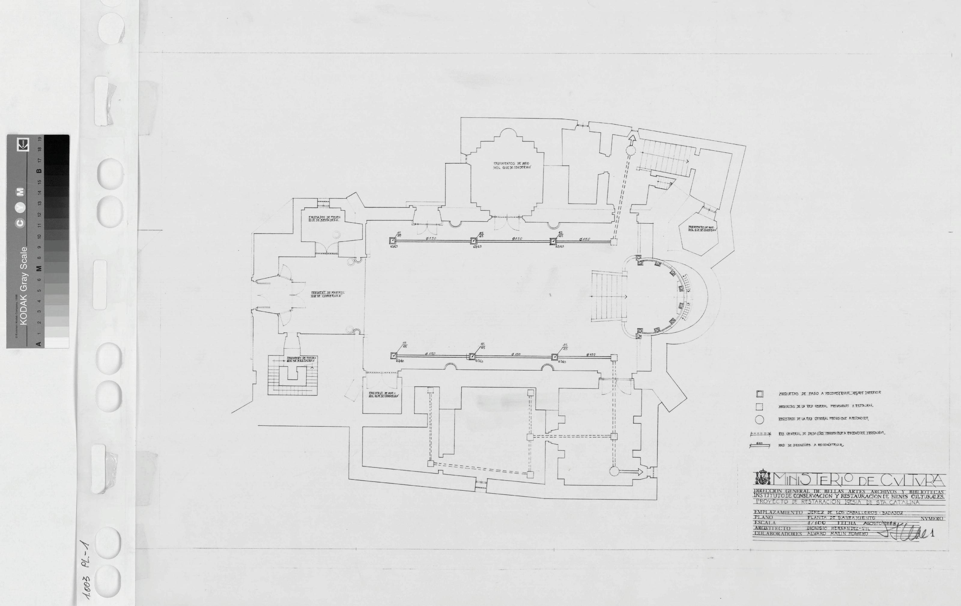
IGLESIA DE SANTA CATALINA JEREZ DE LOS CABALLEROS (Badajoz): PLANTA DE SANEAMIENTO Con medidas de arquetas y tubos Con leyenda y firmado
|
|
|
|
IGLESIA DE SANTA CATALINA JEREZ DE LOS CABALLEROS (Badajoz): PLANTA DE SANEAMIENTO Con medidas de arquetas y tubos Con leyenda y firmado
Fechas extremas
1955, enero, 1
Signatura
PLM ARCH 1 1003 / 1
Tipología documental
Plano
Signatura digital
Nº de Imagen: 00090 Nº de Disco TIFF: 0003 Nº de Disco JPEG: 0001 Nº de Disco DJVU: 0001
IGLESIA DE SANTA CATALINA JEREZ DE LOS CABALLEROS (Badajoz): PLANTA DE SANEAMIENTO Con medidas de arquetas y tubos Con leyenda y firmado
|