|
Instituto del Patrimonio Cultural de España
»
Planoteca
»
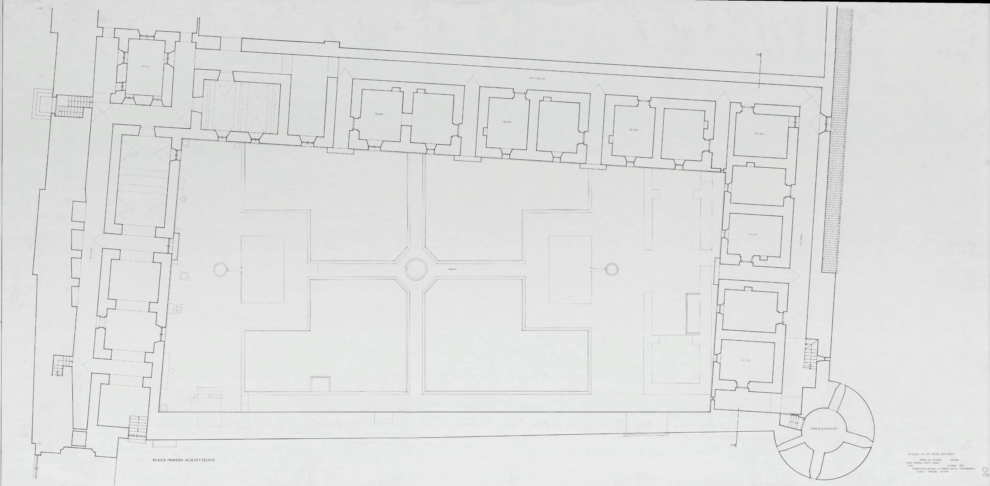
ALCAZAR DE LOS REYES CRISTIANOS CORDOBA: PLANTA PRIMERA - ACCESOS A CELDAS
|
|
|
|
ALCAZAR DE LOS REYES CRISTIANOS CORDOBA: PLANTA PRIMERA - ACCESOS A CELDAS
Fechas extremas
1983, enero, 1
Signatura
PLM ARCH 101 110 / 2
Tipología documental
Plano
Signatura digital
Nº de Imagen: 05079 Nº de Disco TIFF: 0132 Nº de Disco JPEG: 0002 Nº de Disco DJVU: 0001
ALCAZAR DE LOS REYES CRISTIANOS CORDOBA: PLANTA PRIMERA - ACCESOS A CELDAS
|