|
Instituto del Patrimonio Cultural de España
»
Planoteca
»
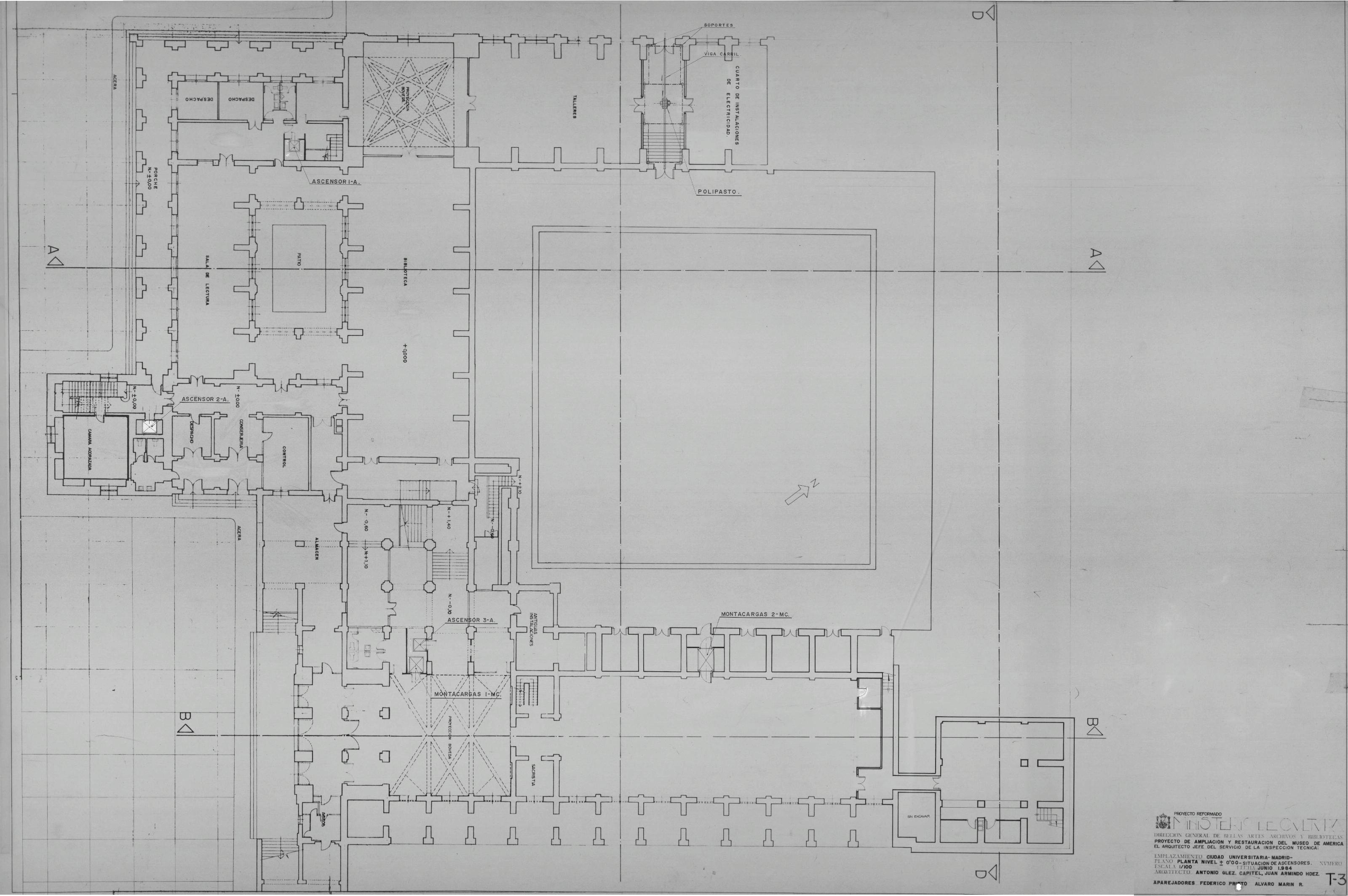
MUSEO DE AMERICA: PLANTA NIVEL +0.00 SITUACION DE ASCENSORES
|
|
|
|
MUSEO DE AMERICA: PLANTA NIVEL +0.00 SITUACION DE ASCENSORES
Fechas extremas
1984, enero, 1
Signatura
PLM ARCH 4 453 / 70
Tipología documental
Plano
Signatura digital
Nº de Imagen: 01731 Nº de Disco TIFF: 0058 Nº de Disco JPEG: 0001 Nº de Disco DJVU: 0001
MUSEO DE AMERICA: PLANTA NIVEL +0.00 SITUACION DE ASCENSORES
|