|
Instituto del Patrimonio Cultural de España
»
Planoteca
»
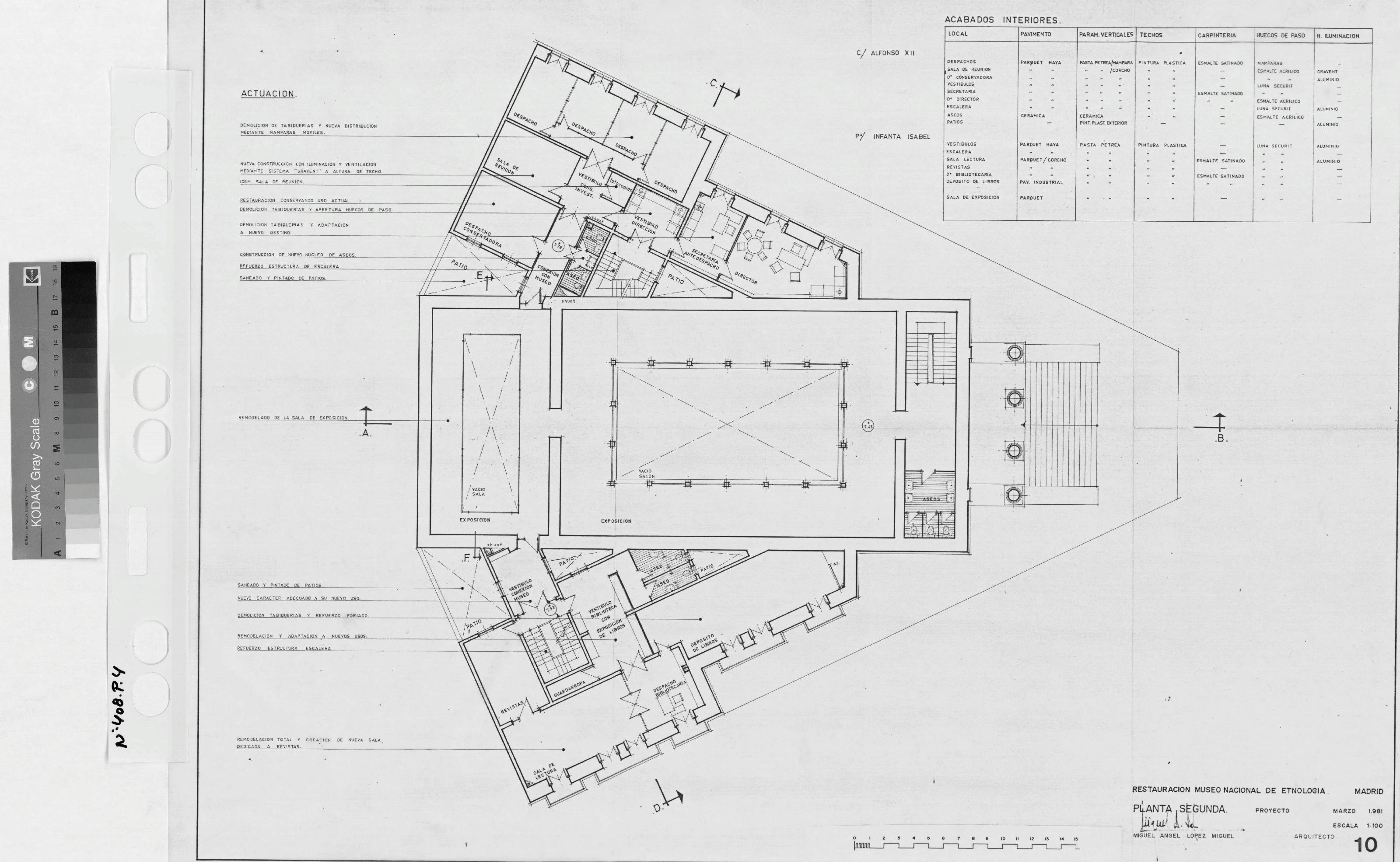
MUSEO ETNOLOGICO: PLANTA SEGUNDA
|
|
|
|
MUSEO ETNOLOGICO: PLANTA SEGUNDA
Fechas extremas
1981, enero, 1
Signatura
PLM ARCH 4 408 / 4
Tipología documental
Plano
Signatura digital
Nº de Imagen: 01334 Nº de Disco TIFF: 0042 Nº de Disco JPEG: 0001 Nº de Disco DJVU: 0001
MUSEO ETNOLOGICO: PLANTA SEGUNDA
|