|
Instituto del Patrimonio Cultural de España
»
Planoteca
»
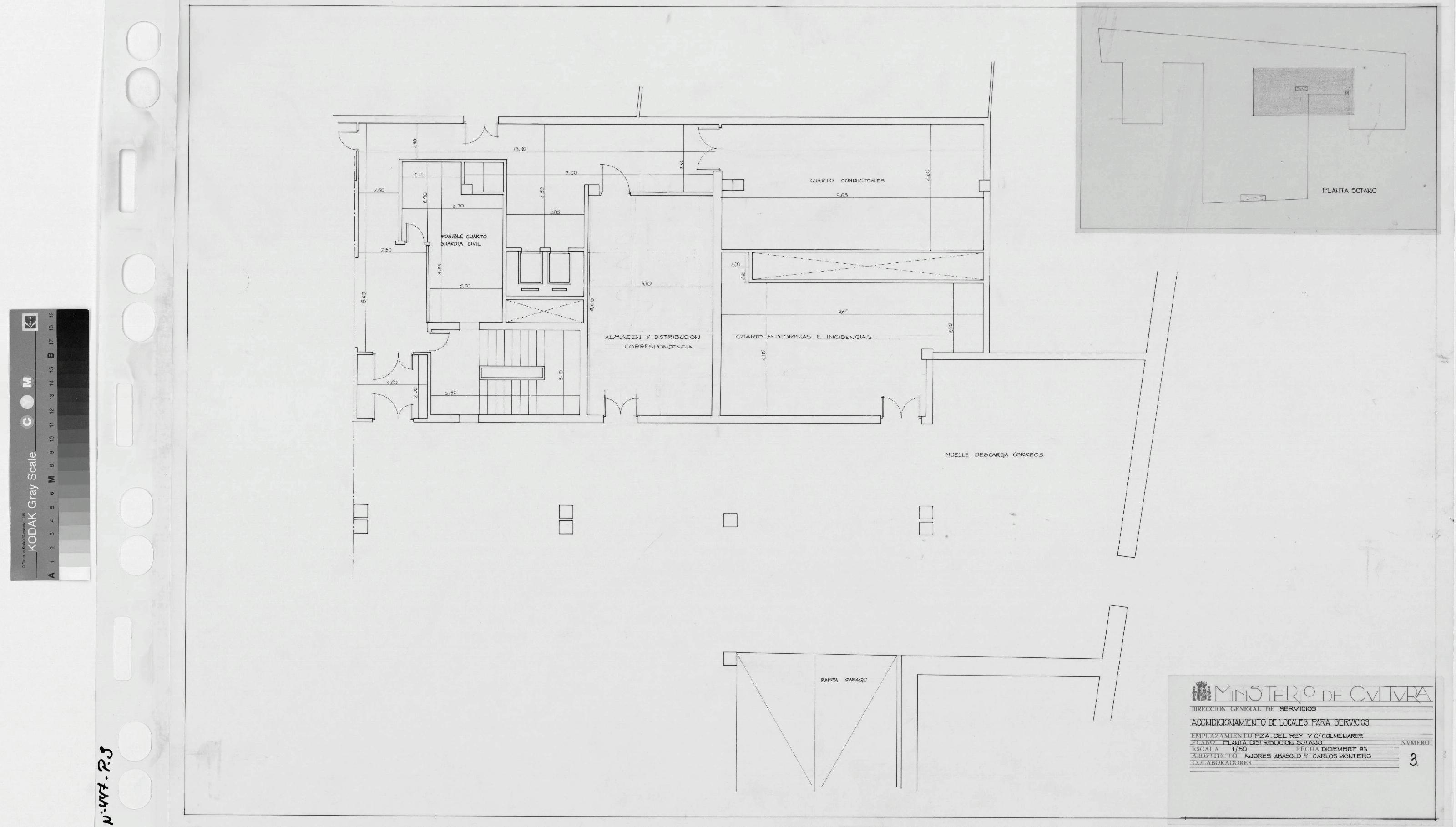
SIETE CHIMENEAS (ACONDICIONAMIENTO DE LOCALES PARA SERVICIOS): PLANTA DE DISTRIBUCION SOTANO
|
|
|
|
SIETE CHIMENEAS (ACONDICIONAMIENTO DE LOCALES PARA SERVICIOS): PLANTA DE DISTRIBUCION SOTANO
Fechas extremas
1983, enero, 1
Signatura
PLM ARCH 4 447 / 3
Tipología documental
Plano
Signatura digital
Nº de Imagen: 01607 Nº de Disco TIFF: 0051 Nº de Disco JPEG: 0001 Nº de Disco DJVU: 0001
SIETE CHIMENEAS (ACONDICIONAMIENTO DE LOCALES PARA SERVICIOS): PLANTA DE DISTRIBUCION SOTANO
|