|
Instituto del Patrimonio Cultural de España
»
Planoteca
»
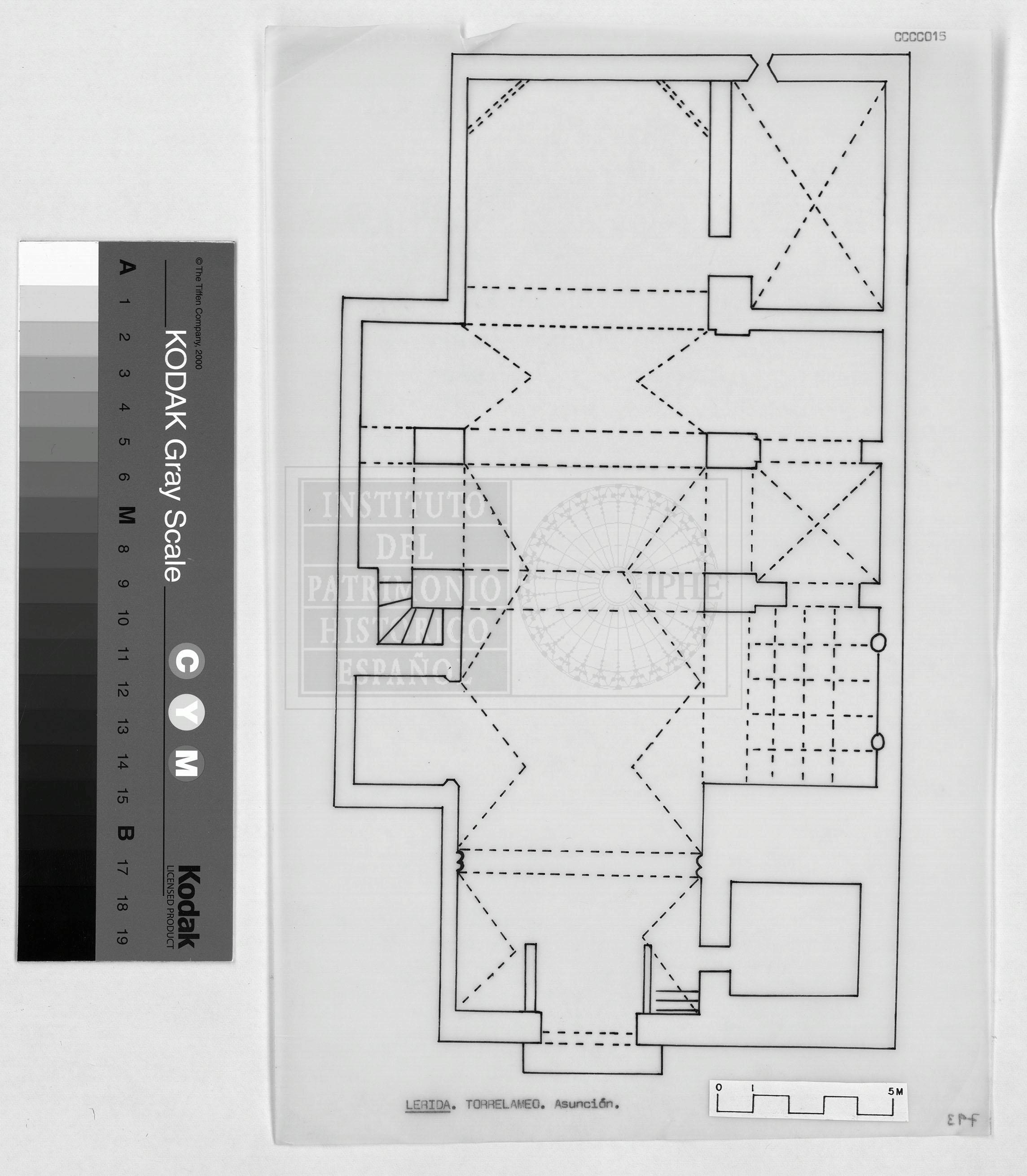
IGLESIA DE LA ASUNCIÓN: PLANO DE PLANTA
|
|
|
|
IGLESIA DE LA ASUNCIÓN: PLANO DE PLANTA
Fechas extremas
9999, septiembre, 9
Signatura
IPA LERID 25 / 793
Tipología documental
Plano
Signatura digital
Nº de Imagen: 15969 Nº de Disco TIFF: HD Nº de Disco JPEG: 0004 Nº de Disco DJVU: 0002
IGLESIA DE LA ASUNCIÓN: PLANO DE PLANTA
|