|
Instituto del Patrimonio Cultural de España
»
Planoteca
»
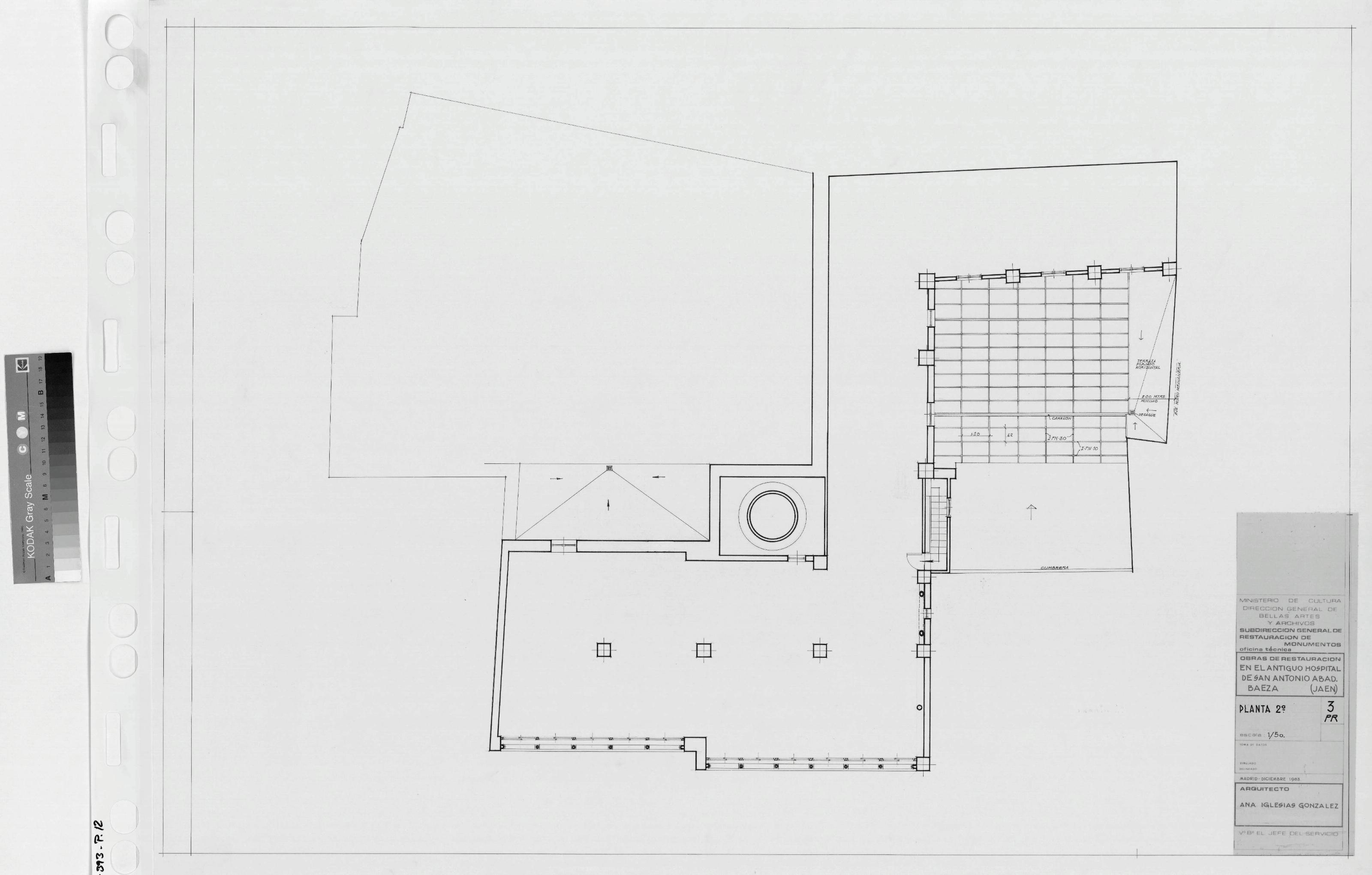
HOSPITAL DE SAN ANTONIO ABAD. BAEZA.: PLANTA SEGUNDA proyecto, señala una parte de la formacion y desagües de cubierta, plano sin cotas.
|
|
|
|
HOSPITAL DE SAN ANTONIO ABAD. BAEZA.: PLANTA SEGUNDA proyecto, señala una parte de la formacion y desagües de cubierta, plano sin cotas.
Fechas extremas
1983, enero, 1
Signatura
PLM ARCH 5 393 / 12
Tipología documental
Plano
Signatura digital
Nº de Imagen: 02171 Nº de Disco TIFF: 0068 Nº de Disco JPEG: 0001 Nº de Disco DJVU: 0001
HOSPITAL DE SAN ANTONIO ABAD. BAEZA.: PLANTA SEGUNDA proyecto, señala una parte de la formacion y desagües de cubierta, plano sin cotas.
|