|
Instituto del Patrimonio Cultural de España
»
Planoteca
»
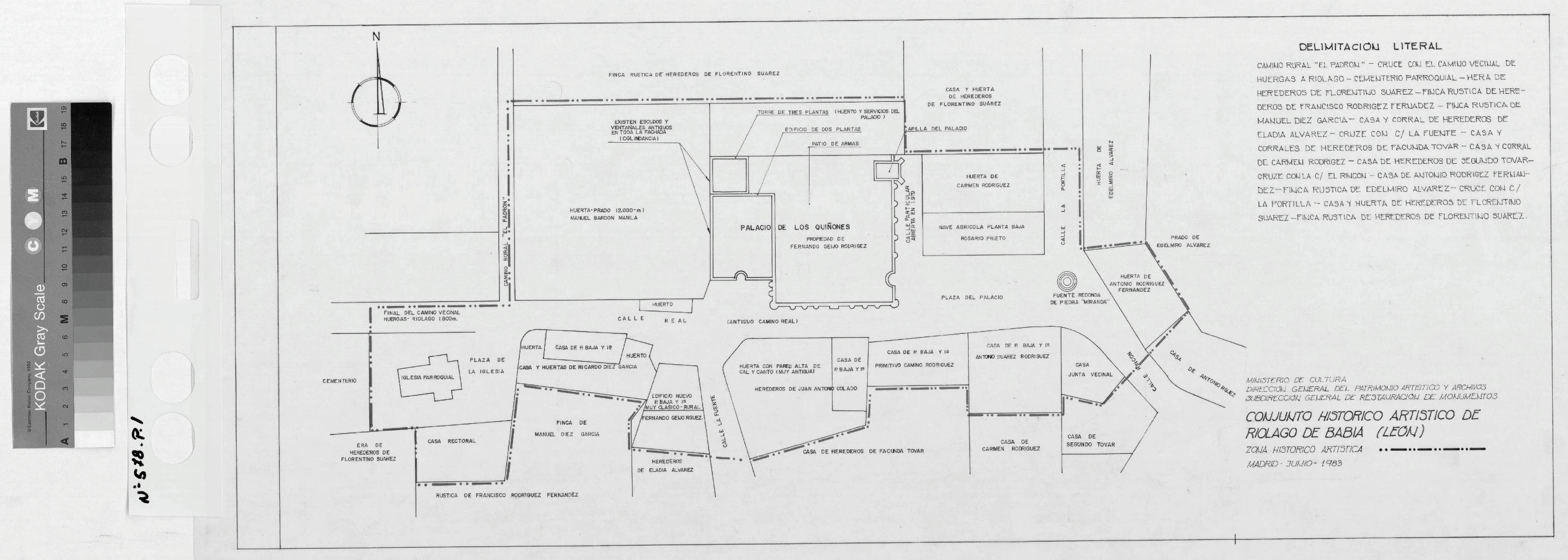
CONJUNTO HISTORICO ARTISTICO DE RIOLAGO DE BABIA: PLANO GENERAL DEL ENTORNO - DELIMITACION
|
|
|
|
CONJUNTO HISTORICO ARTISTICO DE RIOLAGO DE BABIA: PLANO GENERAL DEL ENTORNO - DELIMITACION
Fechas extremas
1983, enero, 1
Signatura
PLM ARCH 3 578 / 1
Tipología documental
Plano
Signatura digital
Nº de Imagen: 01029 Nº de Disco TIFF: 0029 Nº de Disco JPEG: 0001 Nº de Disco DJVU: 0001
CONJUNTO HISTORICO ARTISTICO DE RIOLAGO DE BABIA: PLANO GENERAL DEL ENTORNO - DELIMITACION
|