|
Instituto del Patrimonio Cultural de España
»
Planoteca
»
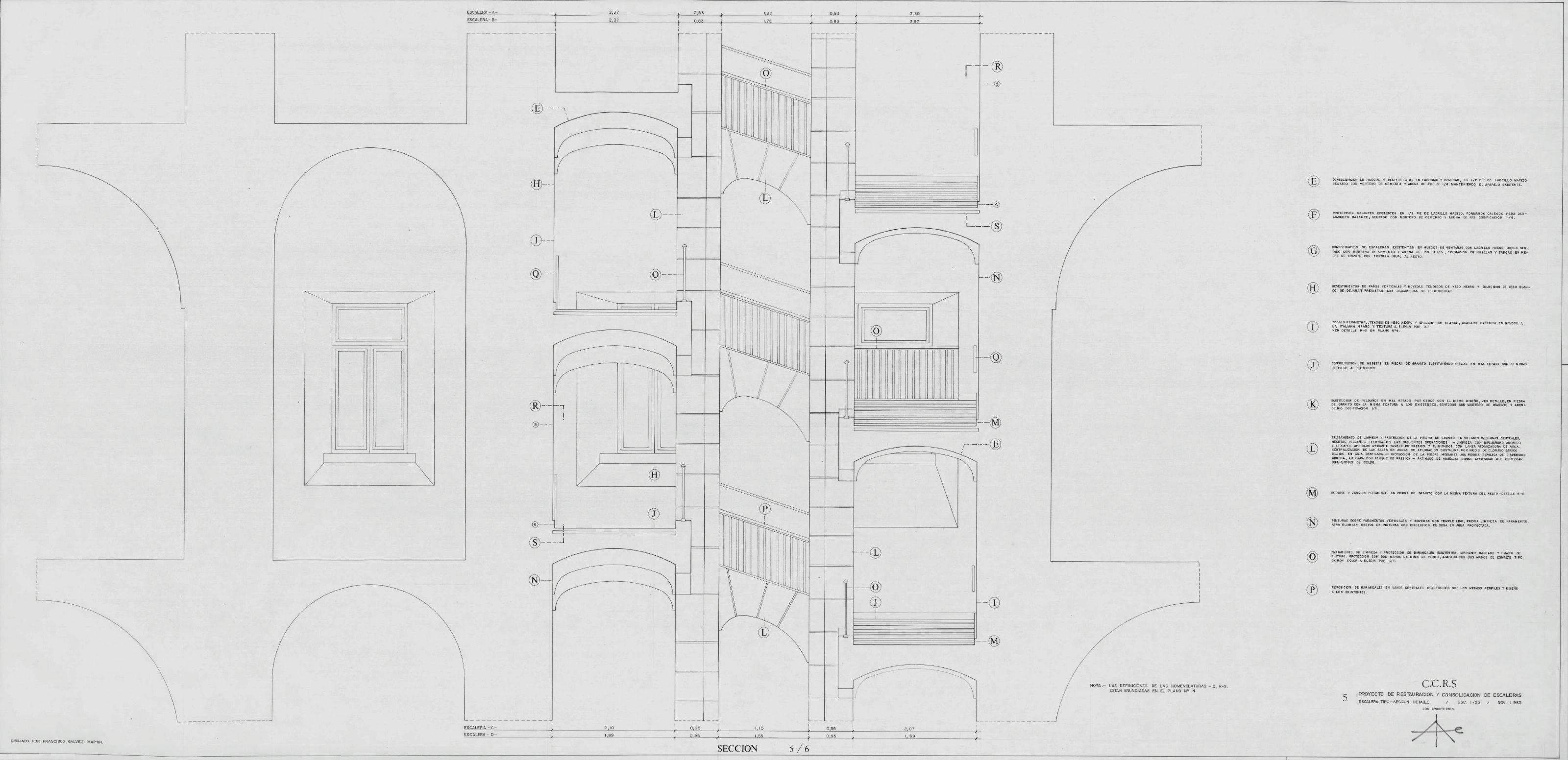
CENTRO CULTURAL REINA SOFIA - ANTIGUO HOSPITAL PROVINCIAL: SECCION DETALLE ESCALERA TIPO
|
|
|
|
CENTRO CULTURAL REINA SOFIA - ANTIGUO HOSPITAL PROVINCIAL: SECCION DETALLE ESCALERA TIPO
Fechas extremas
1985, enero, 1
Signatura
PLM ARCH 4 405 / 14
Tipología documental
Plano
Signatura digital
Nº de Imagen: 01268 Nº de Disco TIFF: 0040 Nº de Disco JPEG: 0001 Nº de Disco DJVU: 0001
CENTRO CULTURAL REINA SOFIA - ANTIGUO HOSPITAL PROVINCIAL: SECCION DETALLE ESCALERA TIPO
|