|
Instituto del Patrimonio Cultural de España
»
Planoteca
»
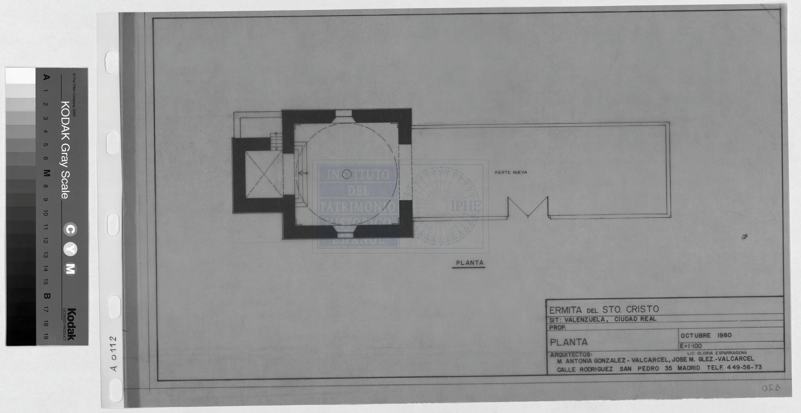
ERMITA DEL SANTO CRISTO: PLANTA GENERAL
|
|
|
|
ERMITA DEL SANTO CRISTO: PLANTA GENERAL
Fechas extremas
1980, enero, 1
Signatura
IPA CIURE 13 / 120
Tipología documental
Plano
Signatura digital
Nº de Imagen: 13339 Nº de Disco TIFF: HD Nº de Disco JPEG: 0004 Nº de Disco DJVU: 0002
ERMITA DEL SANTO CRISTO: PLANTA GENERAL
|