|
Instituto del Patrimonio Cultural de España
»
Planoteca
»
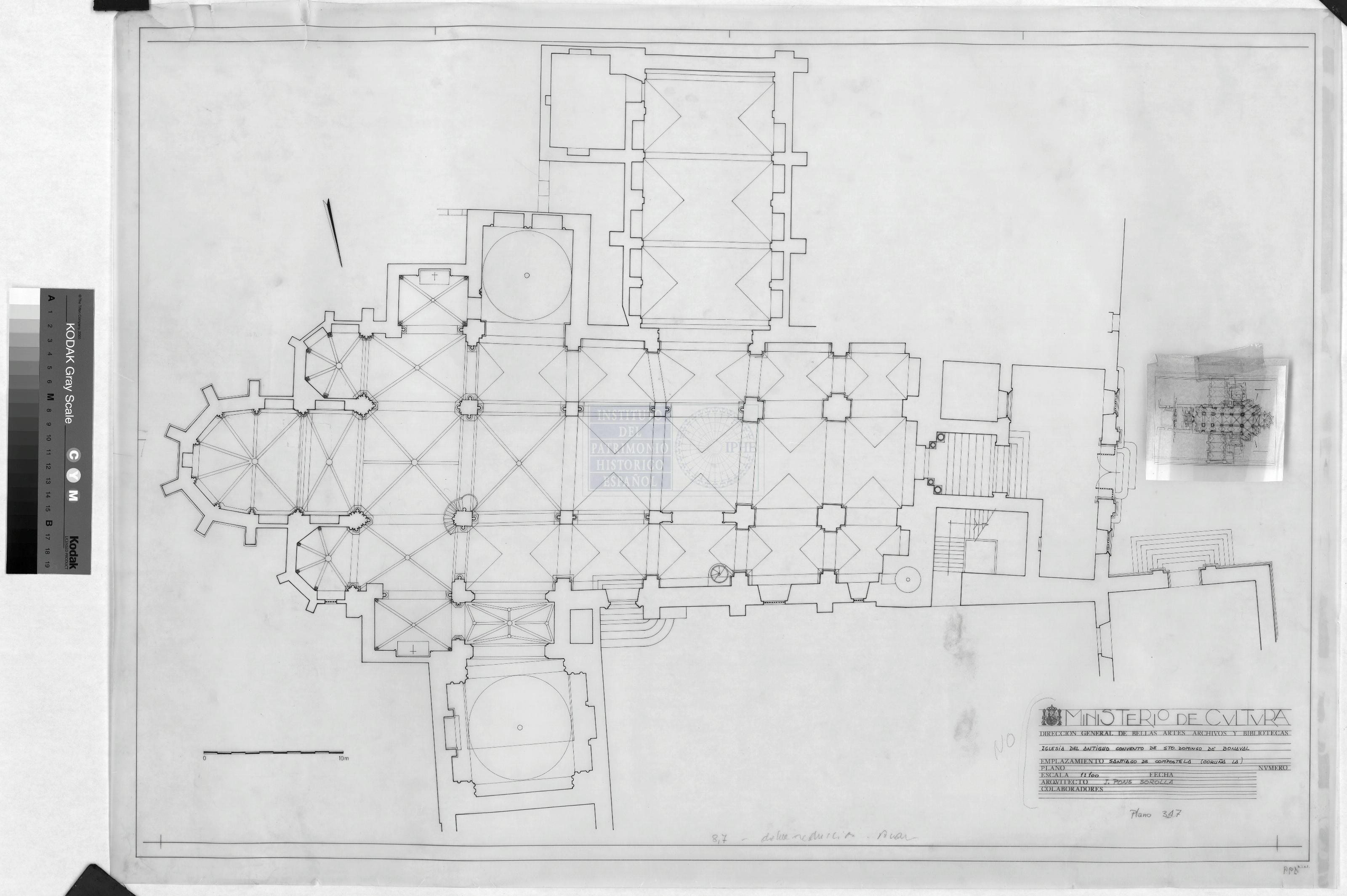
IGLESIA DEL ANTIGUO CONVENTO DE SANTO DOMINGO DE BENOVAL: PLANTA GENERAL
|
|
|
|
IGLESIA DEL ANTIGUO CONVENTO DE SANTO DOMINGO DE BENOVAL: PLANTA GENERAL
Fechas extremas
9999, septiembre, 9
Signatura
IPA CORUÑ 15 / 199
Tipología documental
Plano
Signatura digital
Nº de Imagen: 13835 Nº de Disco TIFF: HD Nº de Disco JPEG: 0004 Nº de Disco DJVU: 0002
IGLESIA DEL ANTIGUO CONVENTO DE SANTO DOMINGO DE BENOVAL: PLANTA GENERAL
|