|
Instituto del Patrimonio Cultural de España
»
Planoteca
»
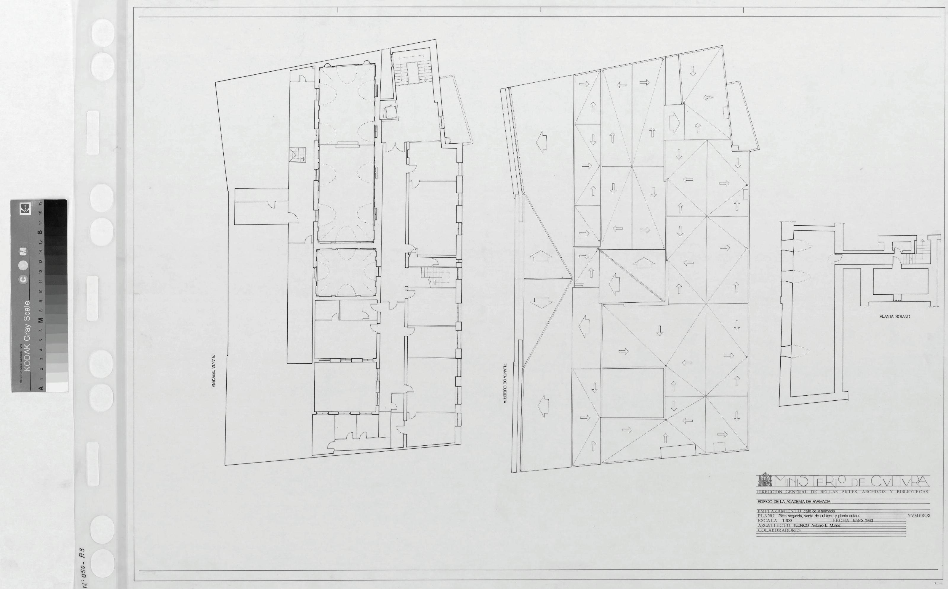
ACADEMIA DE FARMACIA EDIFICIO.: PLANTA SEGUNDA, PLANTA DE CUBIERTA Y PLANTA SOTANO. Plano con planta baja y planta primera , muros regruesados y tabiquerias, con emplazamiento a calle de la farmacia, plano sin cotas.
|
|
|
|
ACADEMIA DE FARMACIA EDIFICIO.: PLANTA SEGUNDA, PLANTA DE CUBIERTA Y PLANTA SOTANO. Plano con planta baja y planta primera , muros regruesados y tabiquerias, con emplazamiento a calle de la farmacia, plano sin cotas.
Fechas extremas
1983, enero, 1
Signatura
PLM ARCH 100 50 / 3
Tipología documental
Plano
Signatura digital
Nº de Imagen: 04834 Nº de Disco TIFF: 0120 Nº de Disco JPEG: 0001 Nº de Disco DJVU: 0001
ACADEMIA DE FARMACIA EDIFICIO.: PLANTA SEGUNDA, PLANTA DE CUBIERTA Y PLANTA SOTANO. Plano con planta baja y planta primera , muros regruesados y tabiquerias, con emplazamiento a calle de la farmacia, plano sin cotas.
|