|
Instituto del Patrimonio Cultural de España
»
Planoteca
»
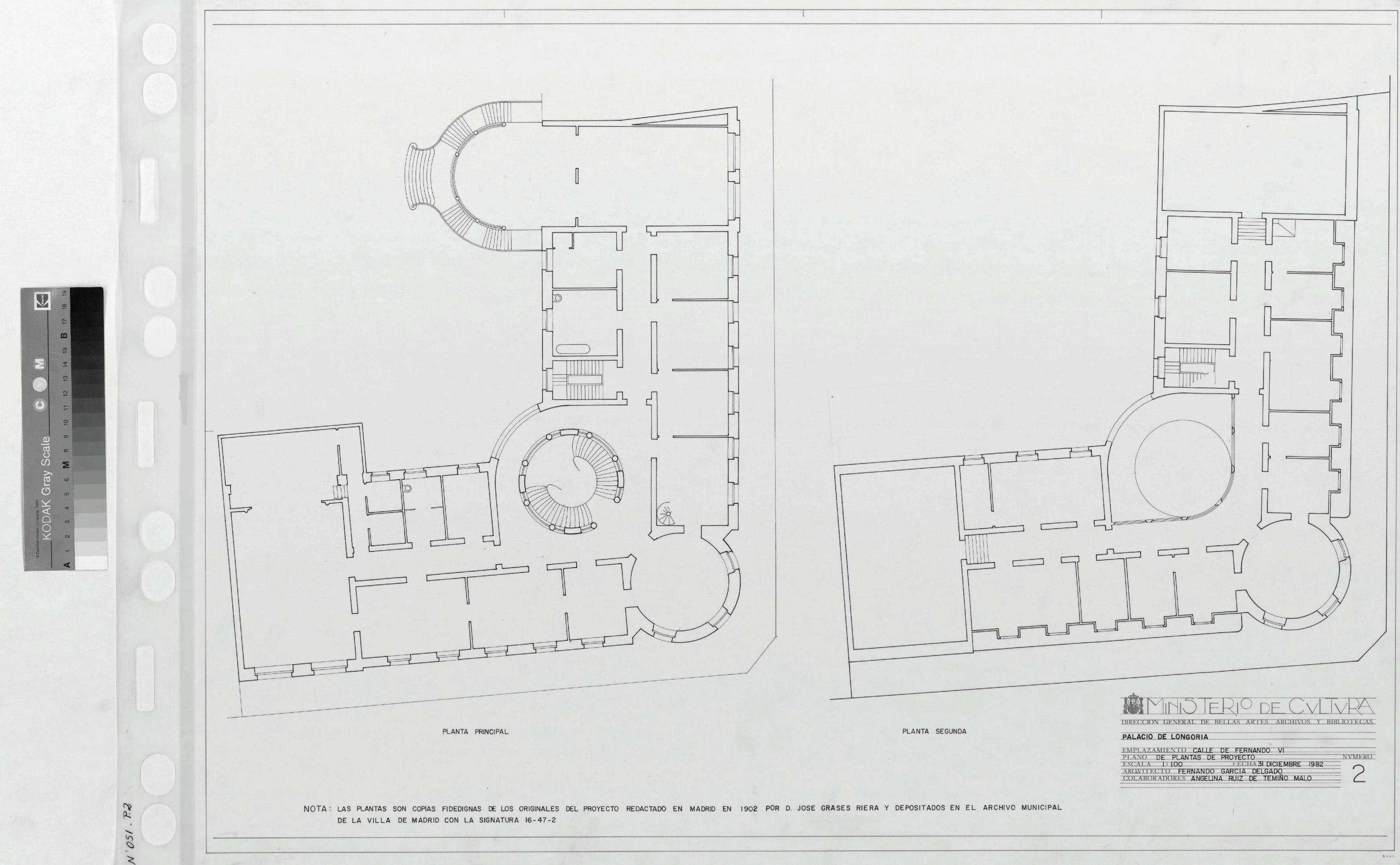
PALACIO DE LONGORIA: PLANTAS de PROYECTO Plantas principal y segunda, muros regruesados y tabiquerias, con emplazamiento a calle Fernando VI , plano sin cotas.
|
|
|
|
PALACIO DE LONGORIA: PLANTAS de PROYECTO Plantas principal y segunda, muros regruesados y tabiquerias, con emplazamiento a calle Fernando VI , plano sin cotas.
Fechas extremas
1982, enero, 1
Signatura
PLM ARCH 100 51 / 2
Tipología documental
Plano
Signatura digital
Nº de Imagen: 04839 Nº de Disco TIFF: 0120 Nº de Disco JPEG: 0001 Nº de Disco DJVU: 0001
PALACIO DE LONGORIA: PLANTAS de PROYECTO Plantas principal y segunda, muros regruesados y tabiquerias, con emplazamiento a calle Fernando VI , plano sin cotas.
|