|
Instituto del Patrimonio Cultural de España
»
Planoteca
»
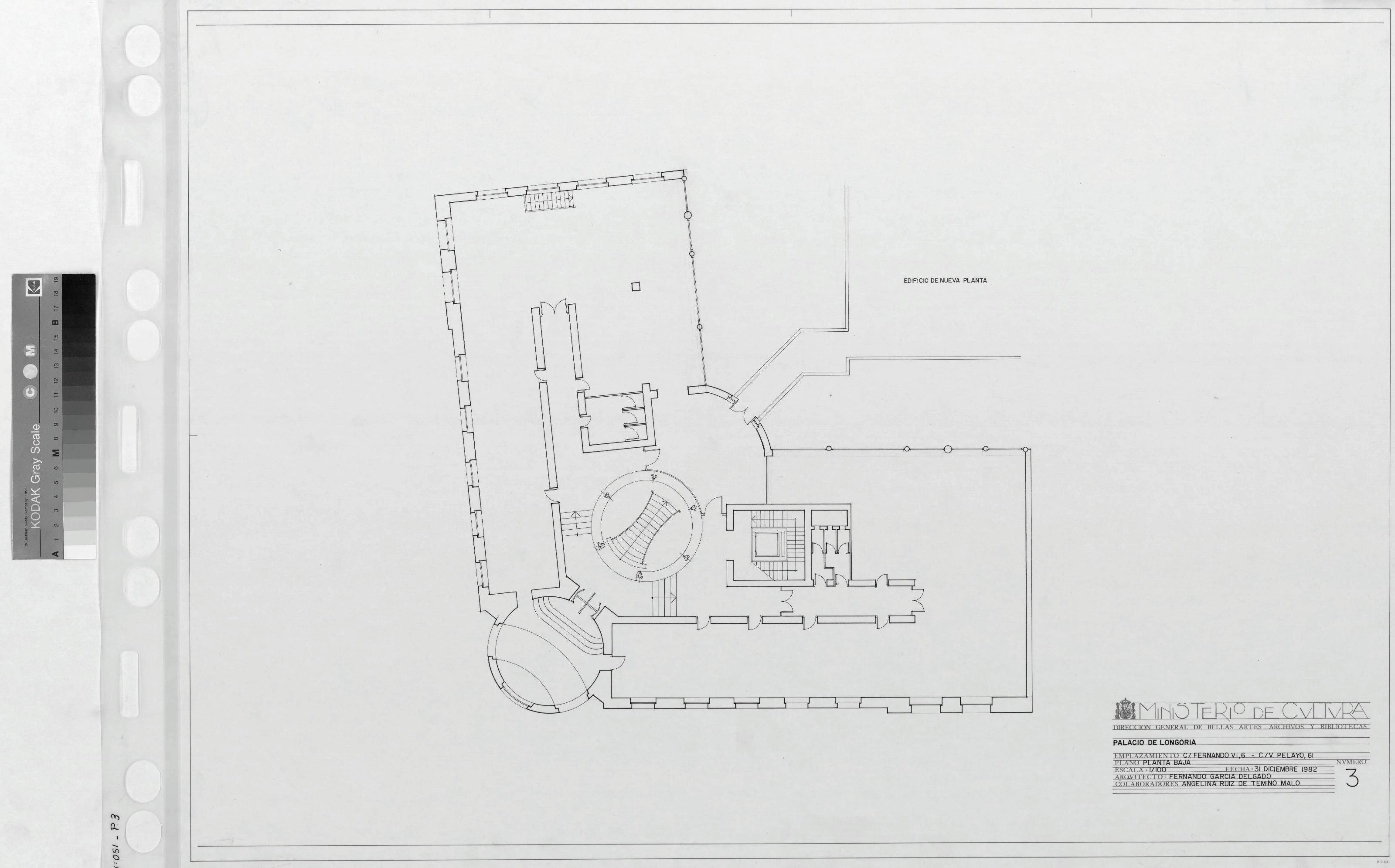
PALACIO DE LONGORIA: PLANTA BAJA Planta baja, muros regruesados y tabiquerias, con emplazamiento a calle Fernando VI y calle pelayo ,plano sin cotas.
|
|
|
|
PALACIO DE LONGORIA: PLANTA BAJA Planta baja, muros regruesados y tabiquerias, con emplazamiento a calle Fernando VI y calle pelayo ,plano sin cotas.
Fechas extremas
1982, enero, 1
Signatura
PLM ARCH 100 51 / 3
Tipología documental
Plano
Signatura digital
Nº de Imagen: 04840 Nº de Disco TIFF: 0120 Nº de Disco JPEG: 0001 Nº de Disco DJVU: 0001
PALACIO DE LONGORIA: PLANTA BAJA Planta baja, muros regruesados y tabiquerias, con emplazamiento a calle Fernando VI y calle pelayo ,plano sin cotas.
|