|
Instituto del Patrimonio Cultural de España
»
Planoteca
»
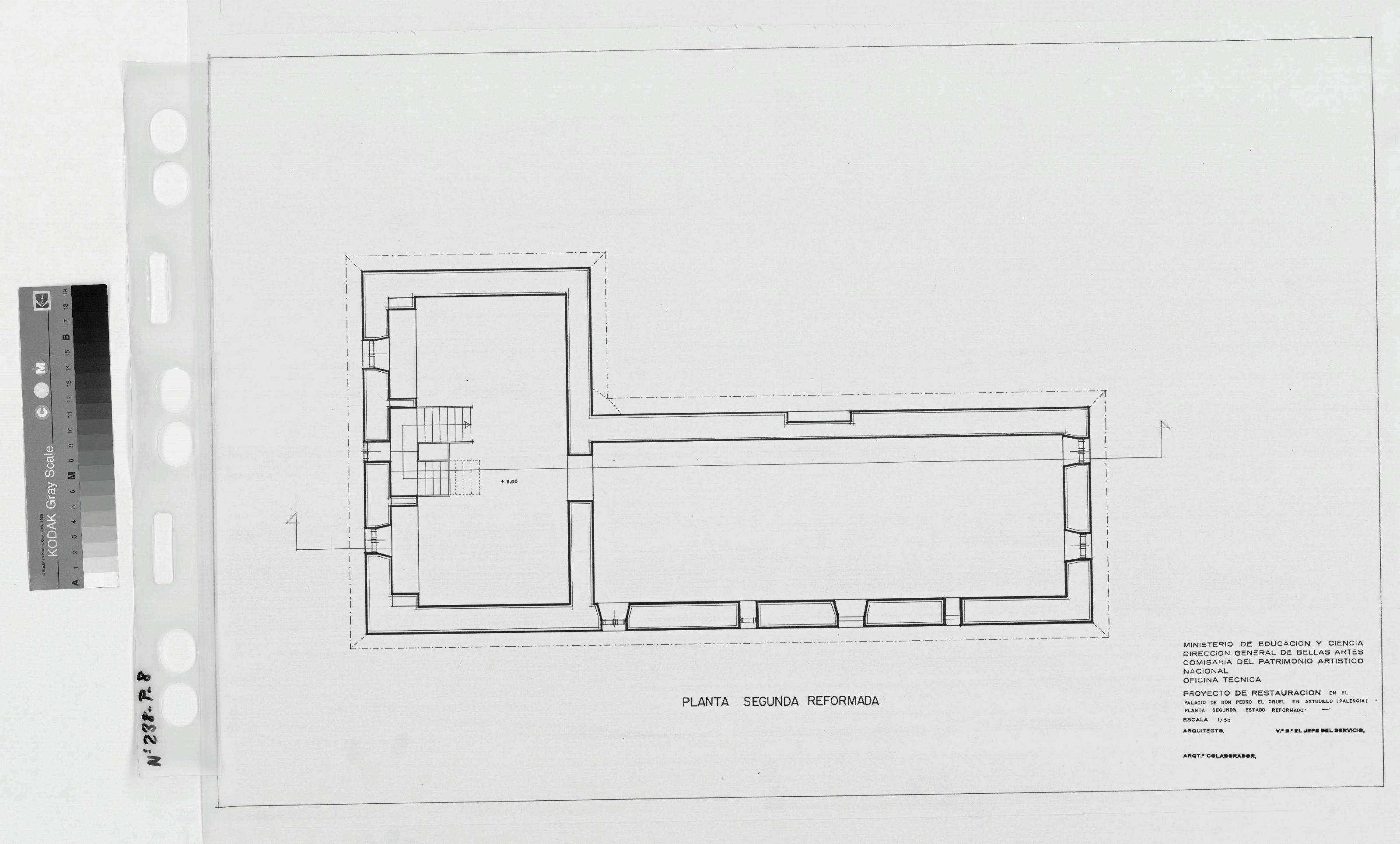
PALACIO DE DON PEDRO EL CRUEL: PLANTA SEGUNDA REFORMADO- 8BIS
|
|
|
|
PALACIO DE DON PEDRO EL CRUEL: PLANTA SEGUNDA REFORMADO- 8BIS
Fechas extremas
9999, septiembre, 9
Signatura
PLM ARCH 7 238 / 8
Tipología documental
Plano
Signatura digital
Nº de Imagen: 02915 Nº de Disco TIFF: 0083 Nº de Disco JPEG: 0001 Nº de Disco DJVU: 0001
PALACIO DE DON PEDRO EL CRUEL: PLANTA SEGUNDA REFORMADO- 8BIS
|