|
Instituto del Patrimonio Cultural de España
»
Planoteca
»
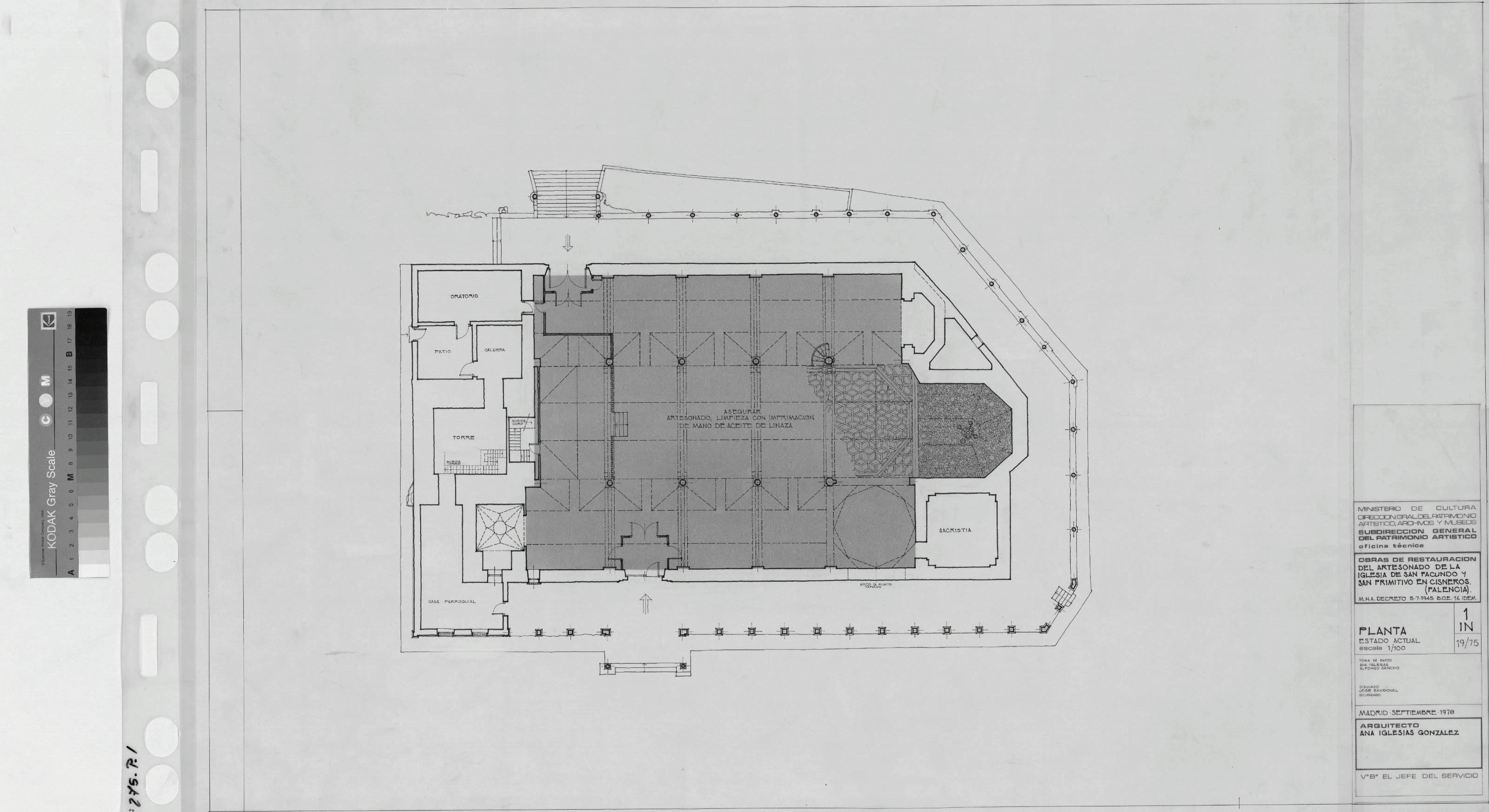
IGLESIA DE SAN FACUNDO Y SAN PRIMITIVO: PLANTA -ESTADO ACTUAL
|
|
|
|
IGLESIA DE SAN FACUNDO Y SAN PRIMITIVO: PLANTA -ESTADO ACTUAL
Fechas extremas
1978, enero, 1
Signatura
PLM ARCH 7 275 / 1
Tipología documental
Plano
Signatura digital
Nº de Imagen: 03168 Nº de Disco TIFF: 0088 Nº de Disco JPEG: 0001 Nº de Disco DJVU: 0001
IGLESIA DE SAN FACUNDO Y SAN PRIMITIVO: PLANTA -ESTADO ACTUAL
|