|
Instituto del Patrimonio Cultural de España
»
Planoteca
»
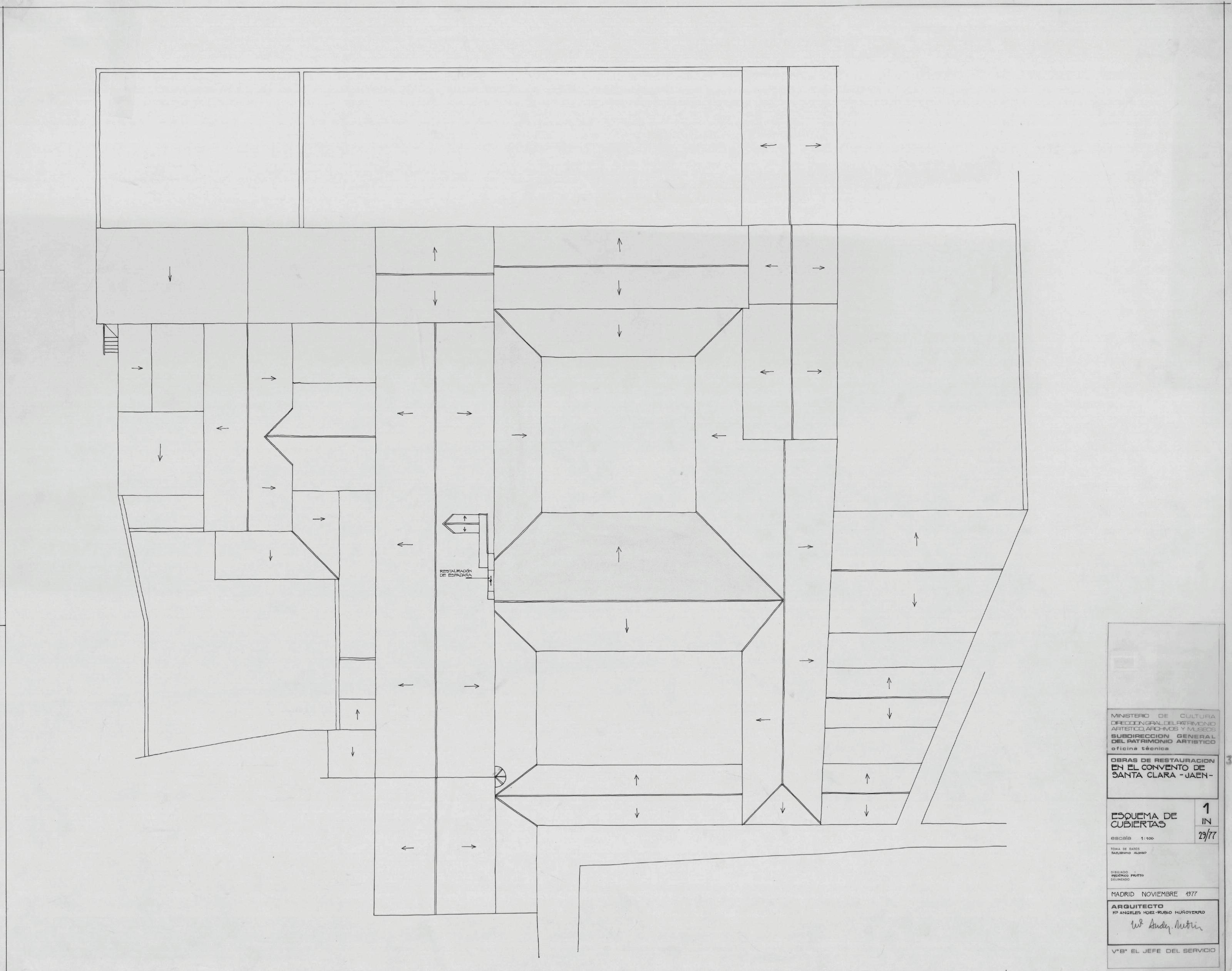
CONVENTO DE SANTA CLARA. - JAEN.: ESQUEMA DE CUBIERTAS, Planta de cubiertas, plano sin cotas.
|
|
|
|
CONVENTO DE SANTA CLARA. - JAEN.: ESQUEMA DE CUBIERTAS, Planta de cubiertas, plano sin cotas.
Fechas extremas
1977, enero, 1
Signatura
PLM ARCH 6 324 / 1
Tipología documental
Plano
Signatura digital
Nº de Imagen: 02717 Nº de Disco TIFF: 0079 Nº de Disco JPEG: 0001 Nº de Disco DJVU: 0001
CONVENTO DE SANTA CLARA. - JAEN.: ESQUEMA DE CUBIERTAS, Planta de cubiertas, plano sin cotas.
|