|
Instituto del Patrimonio Cultural de España
»
Planoteca
»
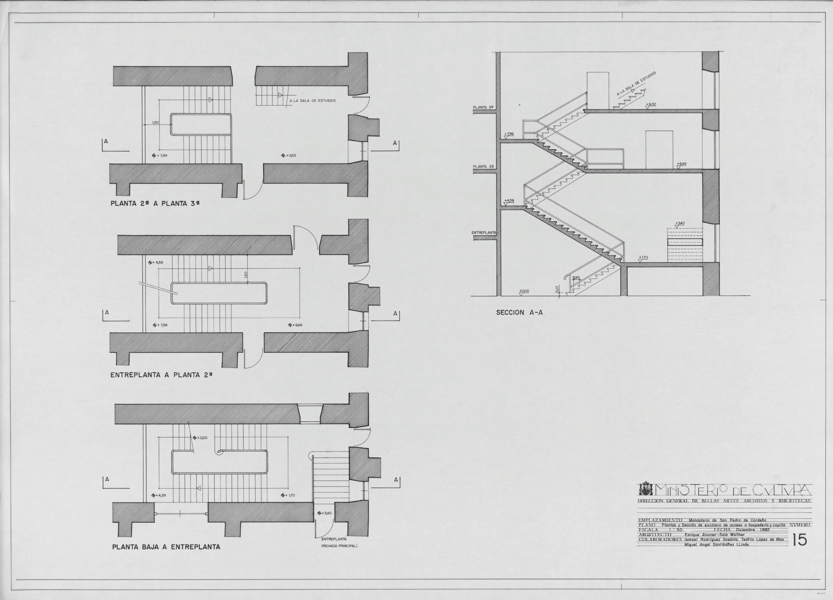
MONASTERIO DE SAN PEDRO DE CARDEÑA.- BURGOS-: PLANTAS Y SECCION DE ESCALERA DE ACCESO A HOSPEDERIA Y CAPILLA. .plano de plantas acotadas, rotuladas y con alturas marcadas en algunos puntos. Planos realizados por personas contratadas por el INEM.
|
|
|
|
MONASTERIO DE SAN PEDRO DE CARDEÑA.- BURGOS-: PLANTAS Y SECCION DE ESCALERA DE ACCESO A HOSPEDERIA Y CAPILLA. .plano de plantas acotadas, rotuladas y con alturas marcadas en algunos puntos. Planos realizados por personas contratadas por el INEM.
Fechas extremas
1982, enero, 1
Signatura
PLM ARCH 100 25 / 15
Tipología documental
Plano
Signatura digital
Nº de Imagen: 04675 Nº de Disco TIFF: 0116 Nº de Disco JPEG: 0001 Nº de Disco DJVU: 0001
MONASTERIO DE SAN PEDRO DE CARDEÑA.- BURGOS-: PLANTAS Y SECCION DE ESCALERA DE ACCESO A HOSPEDERIA Y CAPILLA. .plano de plantas acotadas, rotuladas y con alturas marcadas en algunos puntos. Planos realizados por personas contratadas por el INEM.
|