Instituto del Patrimonio Cultural de España » Planoteca » OBRAS DE RESTAURACION EN EL TEMPLO ROMANO DE MERIDA (Badajoz): PLANTA GENERAL - PROYECTO REFORMADO - BOVEDAS Con cotas de nivel de las diferentes plataformas Con leyenda de los diversos estados de las columnas Con representación en linea de puntos de las proyecciones de bóvedas Con escala gráfica. Firmado

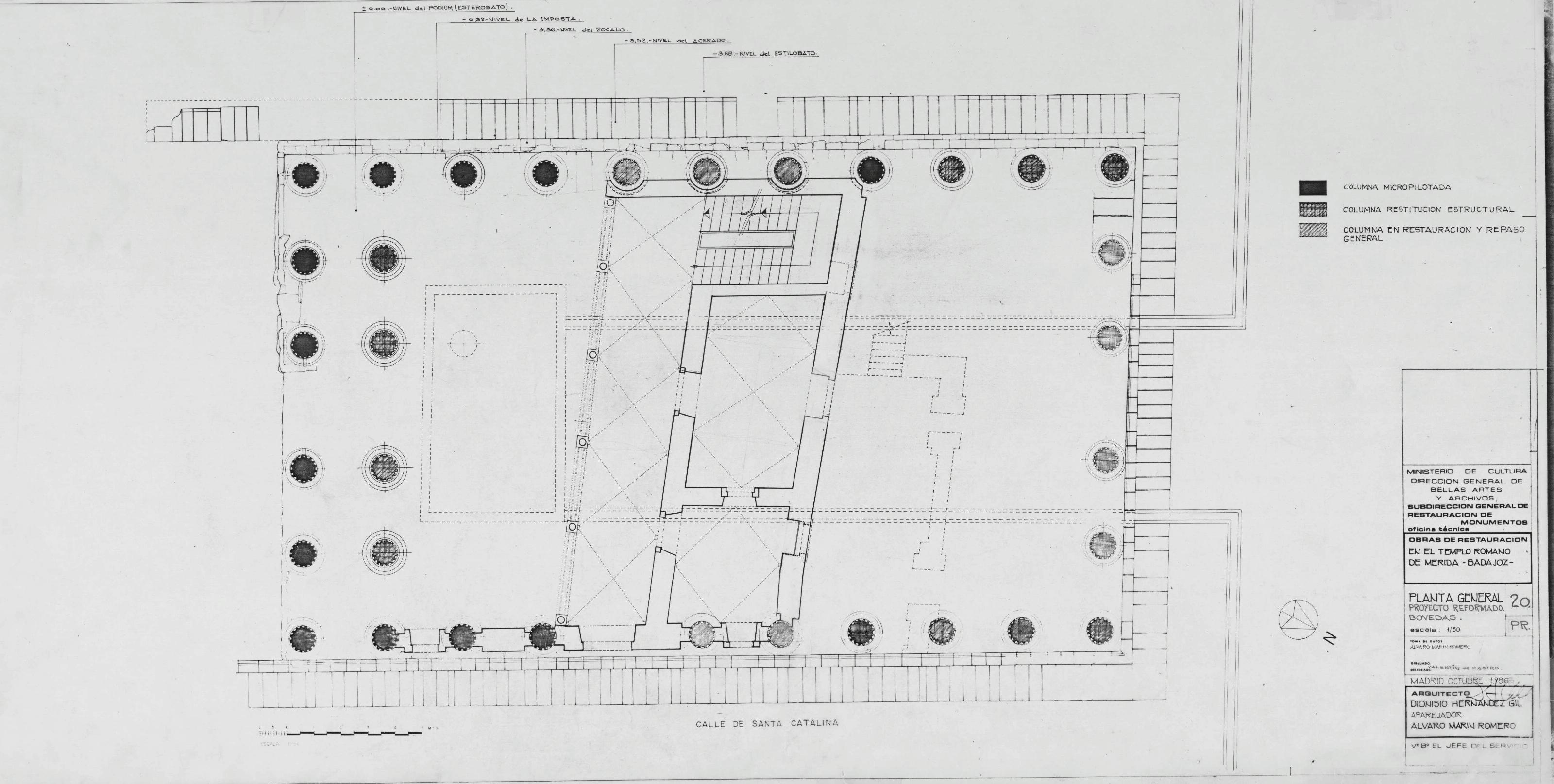
OBRAS DE RESTAURACION EN EL TEMPLO ROMANO
DE MERIDA (Badajoz): PLANTA GENERAL - PROYECTO REFORMADO - BOVEDAS
Con cotas de nivel de las diferentes plataformas
Con leyenda de los diversos estados de las columnas
Con representación en linea de puntos de las proyecciones de bóvedas
Con escala gráfica. Firmado

Fechas extremas 1986, enero, 1
Signatura PLM ARCH 5 403 / 67
Tipología documental Plano
Signatura digital Nº de Imagen: 02322
Nº de Disco TIFF: 0071
Nº de Disco JPEG: 0001
Nº de Disco DJVU: 0001
OBRAS DE RESTAURACION EN EL TEMPLO ROMANO
DE MERIDA (Badajoz): PLANTA GENERAL - PROYECTO REFORMADO - BOVEDAS
Con cotas de nivel de las diferentes plataformas
Con leyenda de los diversos estados de las columnas
Con representación en linea de puntos de las proyecciones de bóvedas
Con escala gráfica. Firmado
<