|
Instituto del Patrimonio Cultural de España
»
Planoteca
»
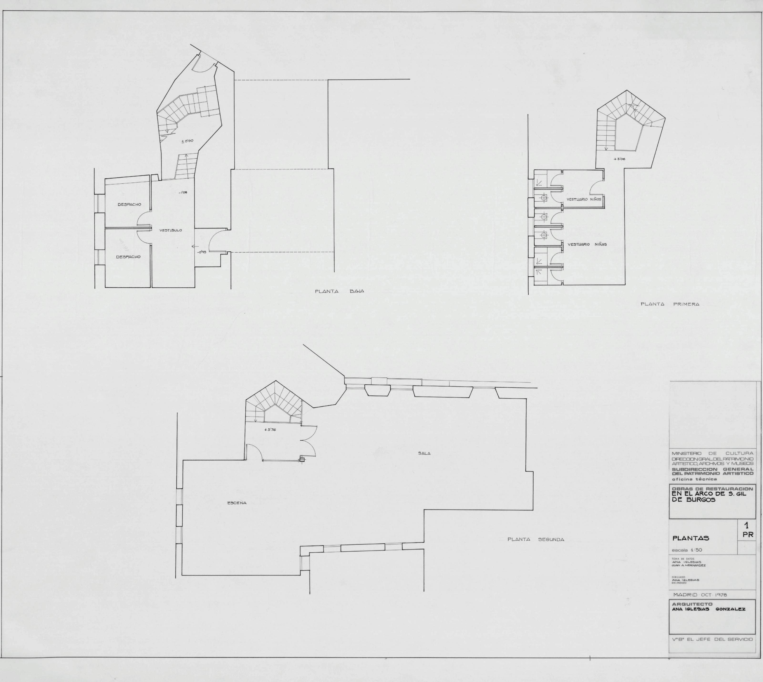
ARCO DE SAN GIL. -BURGOS-: PLANTAS. Baja , primera , y segunda . Planos de distribucion con alguna cota de altura , y dependencias marcadas.
|
|
|
|
ARCO DE SAN GIL. -BURGOS-: PLANTAS. Baja , primera , y segunda . Planos de distribucion con alguna cota de altura , y dependencias marcadas.
Fechas extremas
1978, enero, 1
Signatura
PLM ARCH 6 304 / 15
Tipología documental
Plano
Signatura digital
Nº de Imagen: 02508 Nº de Disco TIFF: 0075 Nº de Disco JPEG: 0001 Nº de Disco DJVU: 0001
ARCO DE SAN GIL. -BURGOS-: PLANTAS. Baja , primera , y segunda . Planos de distribucion con alguna cota de altura , y dependencias marcadas.
|