|
Instituto del Patrimonio Cultural de España
»
Planoteca
»
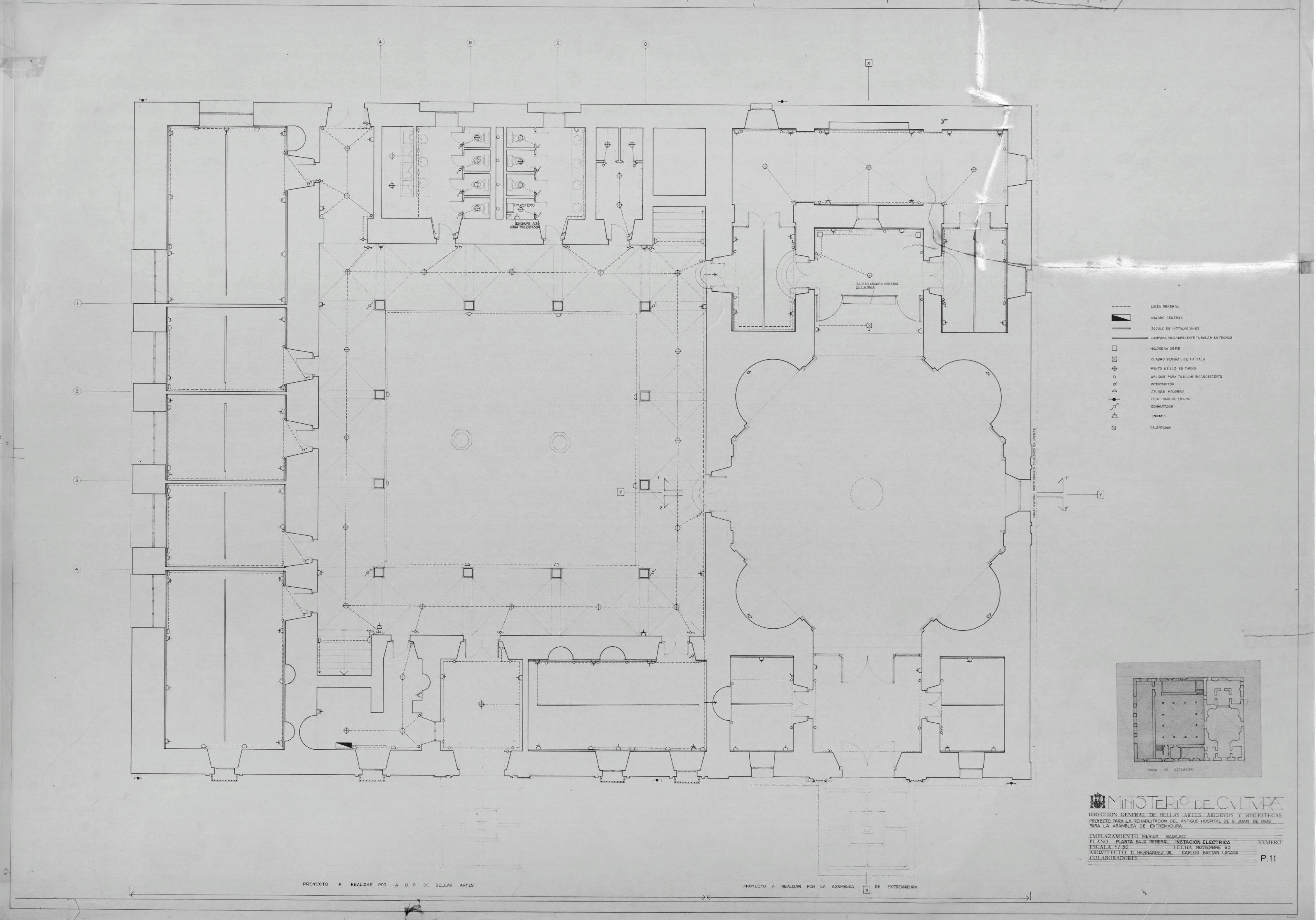
ASAMBLEA DE EXTREMADURA PROYECTO DE REHABILITACIÓN DEL ANTIGUO HOSPITAL DE S. JUAN DE DIOS PARA SEDE DE LA ASAMBLEA: PLANTA BAJA GENERAL INSTALACION ELECTRICA Con símbolos conectados representando los diferentes mecanismos y leyenda. Sin firmar. Especifica zona de proyecto correspondiente a D.G.B.B.A.A. y a la Asamblea de Extremadura.
|
|
|
|
ASAMBLEA DE EXTREMADURA PROYECTO DE REHABILITACIÓN DEL ANTIGUO HOSPITAL DE S. JUAN DE DIOS PARA SEDE DE LA ASAMBLEA: PLANTA BAJA GENERAL INSTALACION ELECTRICA Con símbolos conectados representando los diferentes mecanismos y leyenda. Sin firmar. Especifica zona de proyecto correspondiente a D.G.B.B.A.A. y a la Asamblea de Extremadura.
Fechas extremas
1983, enero, 1
Signatura
PLM ARCH 4 404 / 41
Tipología documental
Plano
Signatura digital
Nº de Imagen: 01189 Nº de Disco TIFF: 0036 Nº de Disco JPEG: 0001 Nº de Disco DJVU: 0001
ASAMBLEA DE EXTREMADURA PROYECTO DE REHABILITACIÓN DEL ANTIGUO HOSPITAL DE S. JUAN DE DIOS PARA SEDE DE LA ASAMBLEA: PLANTA BAJA GENERAL INSTALACION ELECTRICA Con símbolos conectados representando los diferentes mecanismos y leyenda. Sin firmar. Especifica zona de proyecto correspondiente a D.G.B.B.A.A. y a la Asamblea de Extremadura.
|