|
Instituto del Patrimonio Cultural de España
»
Planoteca
»
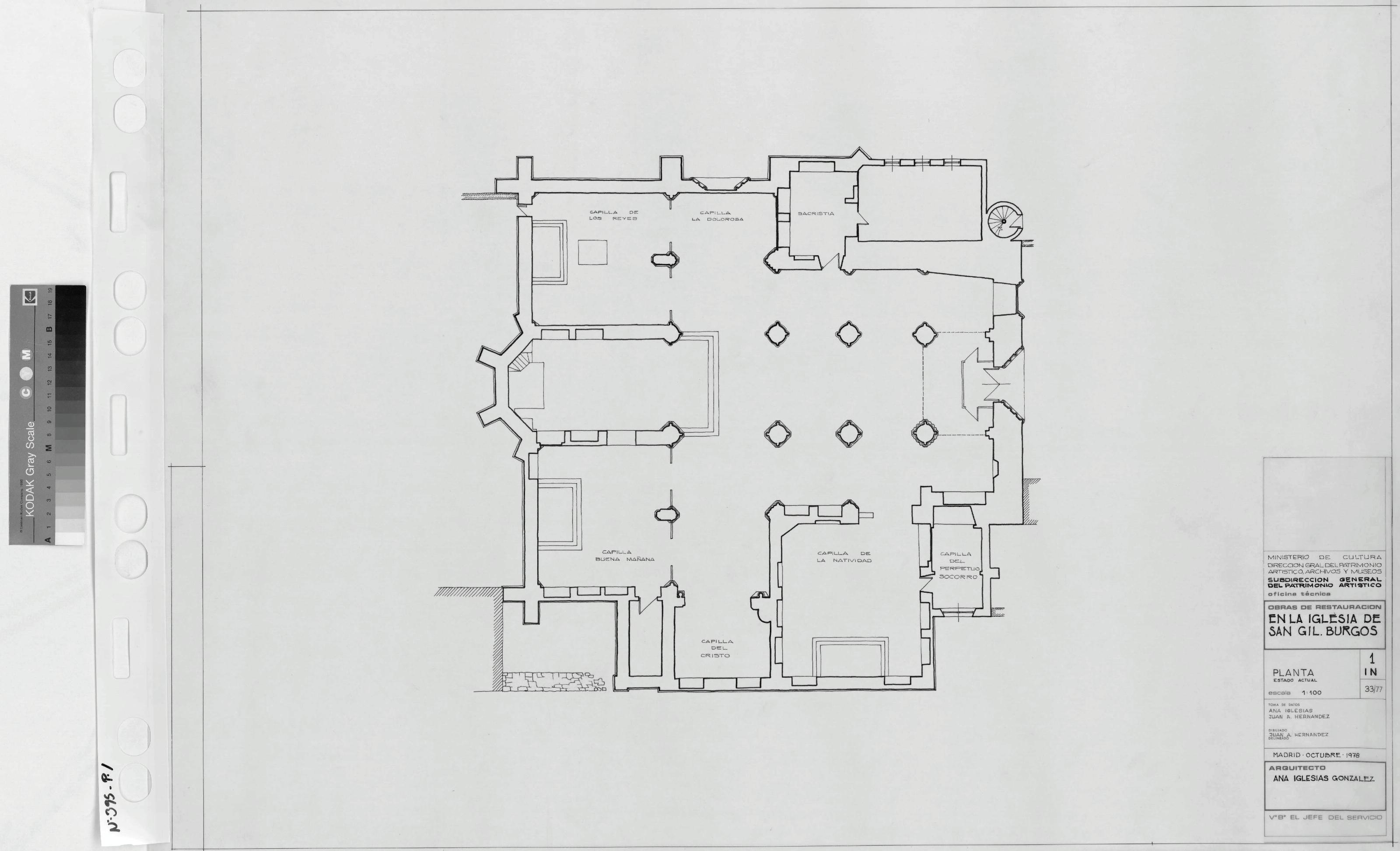
IGLESIA DE SAN GIL. BURGOS.: PLANTA GENERAL. Estado actual, en la planta aparecen marcadas las distintas capillas de la iglesia, junto con la sacristia, muros y pilares regruesados, plano sin cotas.
|
|
|
|
IGLESIA DE SAN GIL. BURGOS.: PLANTA GENERAL. Estado actual, en la planta aparecen marcadas las distintas capillas de la iglesia, junto con la sacristia, muros y pilares regruesados, plano sin cotas.
Fechas extremas
1978, enero, 1
Signatura
PLM ARCH 5 395 / 1
Tipología documental
Plano
Signatura digital
Nº de Imagen: 02195 Nº de Disco TIFF: 0068 Nº de Disco JPEG: 0001 Nº de Disco DJVU: 0001
IGLESIA DE SAN GIL. BURGOS.: PLANTA GENERAL. Estado actual, en la planta aparecen marcadas las distintas capillas de la iglesia, junto con la sacristia, muros y pilares regruesados, plano sin cotas.
|