|
Instituto del Patrimonio Cultural de España
»
Planoteca
»
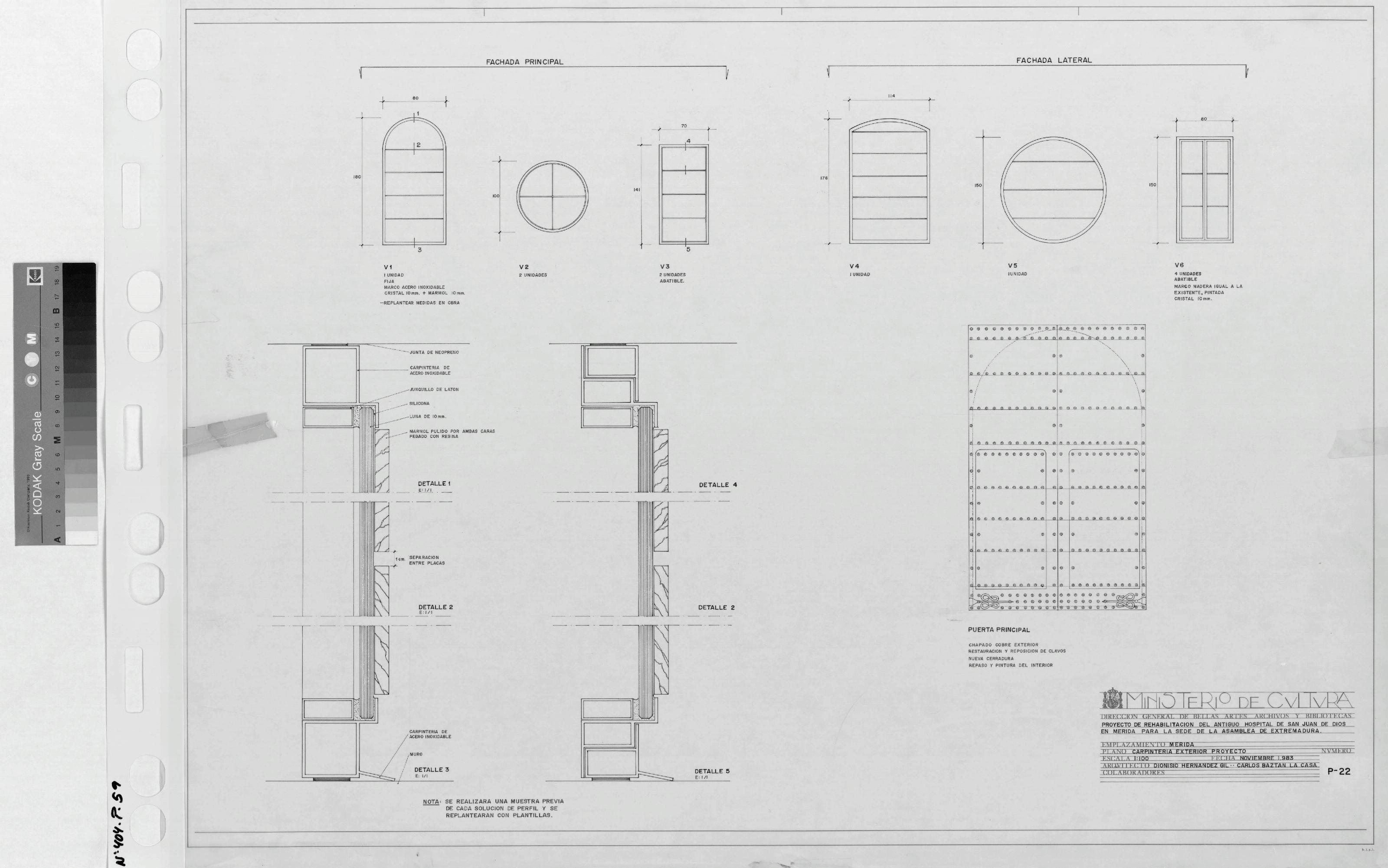
ASAMBLEA DE EXTREMADURA PROYECTO DE REHABILITACIÓN DEL ANTIGUO HOSPITAL DE S. JUAN DE DIOS PARA SEDE DE LA ASAMBLEA: CARPINTERIA EXTERIOR PROYECTO Con secciones a E: 1/1 Con notas, cotas y número de unidades. Sin firmar
|
|
|
|
ASAMBLEA DE EXTREMADURA PROYECTO DE REHABILITACIÓN DEL ANTIGUO HOSPITAL DE S. JUAN DE DIOS PARA SEDE DE LA ASAMBLEA: CARPINTERIA EXTERIOR PROYECTO Con secciones a E: 1/1 Con notas, cotas y número de unidades. Sin firmar
Fechas extremas
1983, enero, 1
Signatura
PLM ARCH 4 404 / 59
Tipología documental
Plano
Signatura digital
Nº de Imagen: 01205 Nº de Disco TIFF: 0037 Nº de Disco JPEG: 0001 Nº de Disco DJVU: 0001
ASAMBLEA DE EXTREMADURA PROYECTO DE REHABILITACIÓN DEL ANTIGUO HOSPITAL DE S. JUAN DE DIOS PARA SEDE DE LA ASAMBLEA: CARPINTERIA EXTERIOR PROYECTO Con secciones a E: 1/1 Con notas, cotas y número de unidades. Sin firmar
|