|
Instituto del Patrimonio Cultural de España
»
Planoteca
»
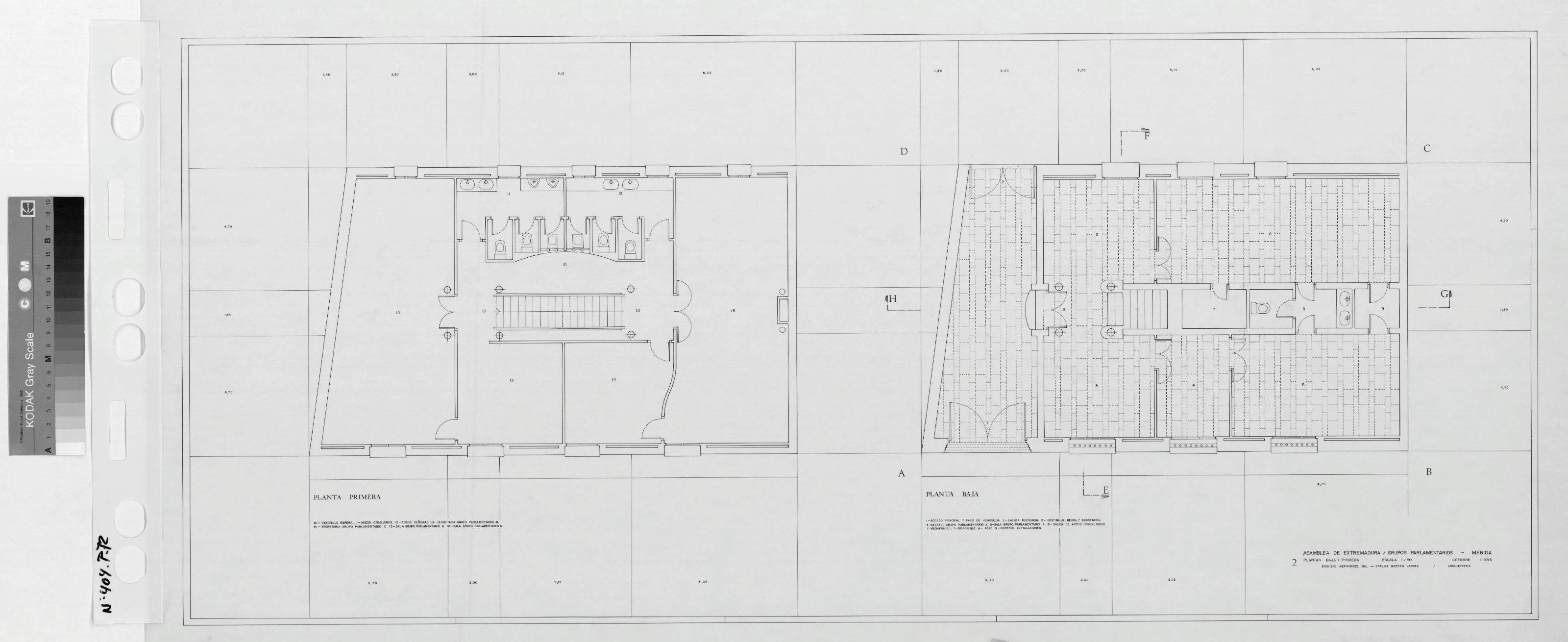
ASAMBLEA DE EXTREMADURA PROYECTO DE REHABILITACIÓN DEL ANTIGUO HOSPITAL DE S. JUAN DE DIOS PARA SEDE DE LA ASAMBLEA: PLANTAS BAJA Y PRIMERA Pone en sello " Asamblea de Extremadura - Grupos Parlamentarios" Con cotas y denominación de usos, despiece de solados y líneas de sección. Sin firmar
|
|
|
|
ASAMBLEA DE EXTREMADURA PROYECTO DE REHABILITACIÓN DEL ANTIGUO HOSPITAL DE S. JUAN DE DIOS PARA SEDE DE LA ASAMBLEA: PLANTAS BAJA Y PRIMERA Pone en sello " Asamblea de Extremadura - Grupos Parlamentarios" Con cotas y denominación de usos, despiece de solados y líneas de sección. Sin firmar
Fechas extremas
1985, enero, 1
Signatura
PLM ARCH 4 404 / 72
Tipología documental
Plano
Signatura digital
Nº de Imagen: 01217 Nº de Disco TIFF: 0037 Nº de Disco JPEG: 0001 Nº de Disco DJVU: 0001
ASAMBLEA DE EXTREMADURA PROYECTO DE REHABILITACIÓN DEL ANTIGUO HOSPITAL DE S. JUAN DE DIOS PARA SEDE DE LA ASAMBLEA: PLANTAS BAJA Y PRIMERA Pone en sello " Asamblea de Extremadura - Grupos Parlamentarios" Con cotas y denominación de usos, despiece de solados y líneas de sección. Sin firmar
|