|
Instituto del Patrimonio Cultural de España
»
Planoteca
»
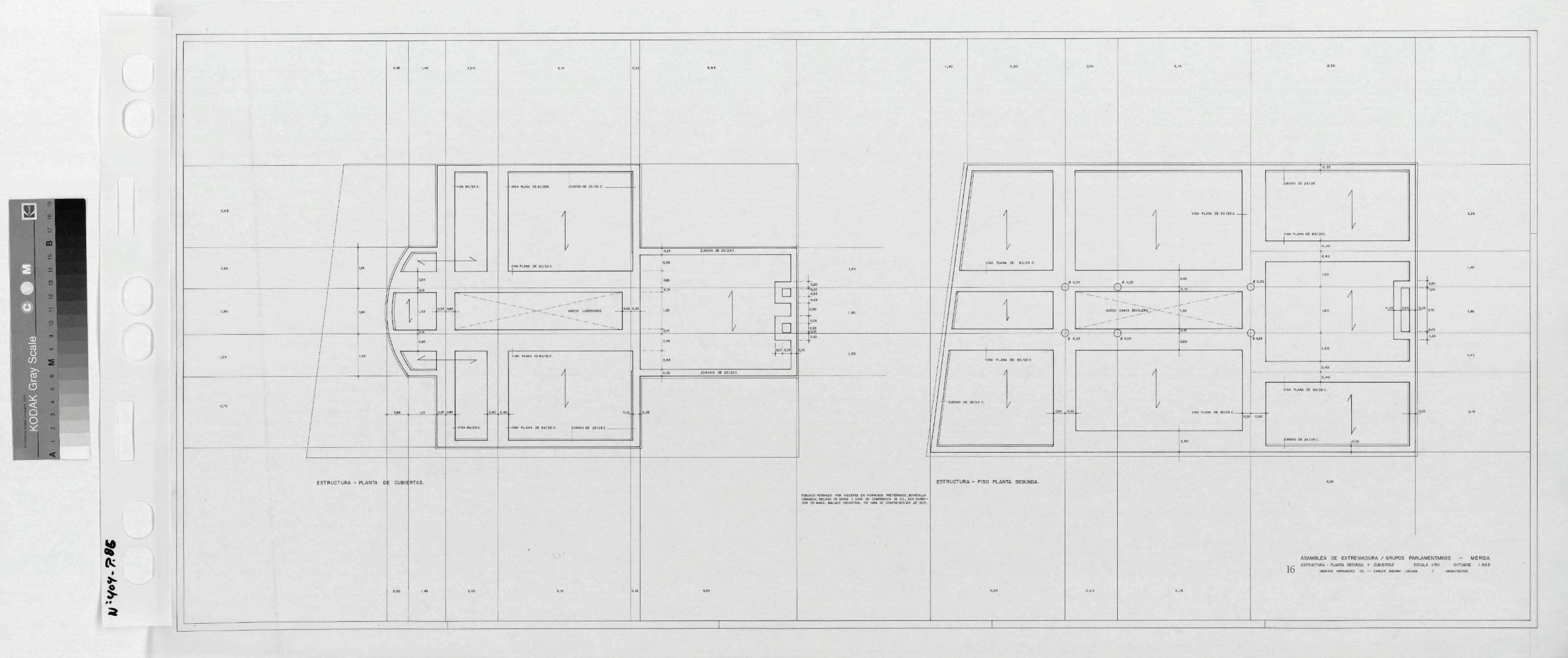
ASAMBLEA DE EXTREMADURA PROYECTO DE REHABILITACIÓN DEL ANTIGUO HOSPITAL DE S. JUAN DE DIOS PARA SEDE DE LA ASAMBLEA: PLANTAS SEGUNDA Y CUBIERTA - ESTRUCTURA Pone en sello " Asamblea de Extremadura - Grupos Parlamentarios" Con zunchado y direccion de viguetas. Con cotas y notas. Sin firmar
|
|
|
|
ASAMBLEA DE EXTREMADURA PROYECTO DE REHABILITACIÓN DEL ANTIGUO HOSPITAL DE S. JUAN DE DIOS PARA SEDE DE LA ASAMBLEA: PLANTAS SEGUNDA Y CUBIERTA - ESTRUCTURA Pone en sello " Asamblea de Extremadura - Grupos Parlamentarios" Con zunchado y direccion de viguetas. Con cotas y notas. Sin firmar
Fechas extremas
1985, enero, 1
Signatura
PLM ARCH 4 404 / 86
Tipología documental
Plano
Signatura digital
Nº de Imagen: 01231 Nº de Disco TIFF: 0038 Nº de Disco JPEG: 0001 Nº de Disco DJVU: 0001
ASAMBLEA DE EXTREMADURA PROYECTO DE REHABILITACIÓN DEL ANTIGUO HOSPITAL DE S. JUAN DE DIOS PARA SEDE DE LA ASAMBLEA: PLANTAS SEGUNDA Y CUBIERTA - ESTRUCTURA Pone en sello " Asamblea de Extremadura - Grupos Parlamentarios" Con zunchado y direccion de viguetas. Con cotas y notas. Sin firmar
|