|
Instituto del Patrimonio Cultural de España
»
Planoteca
»
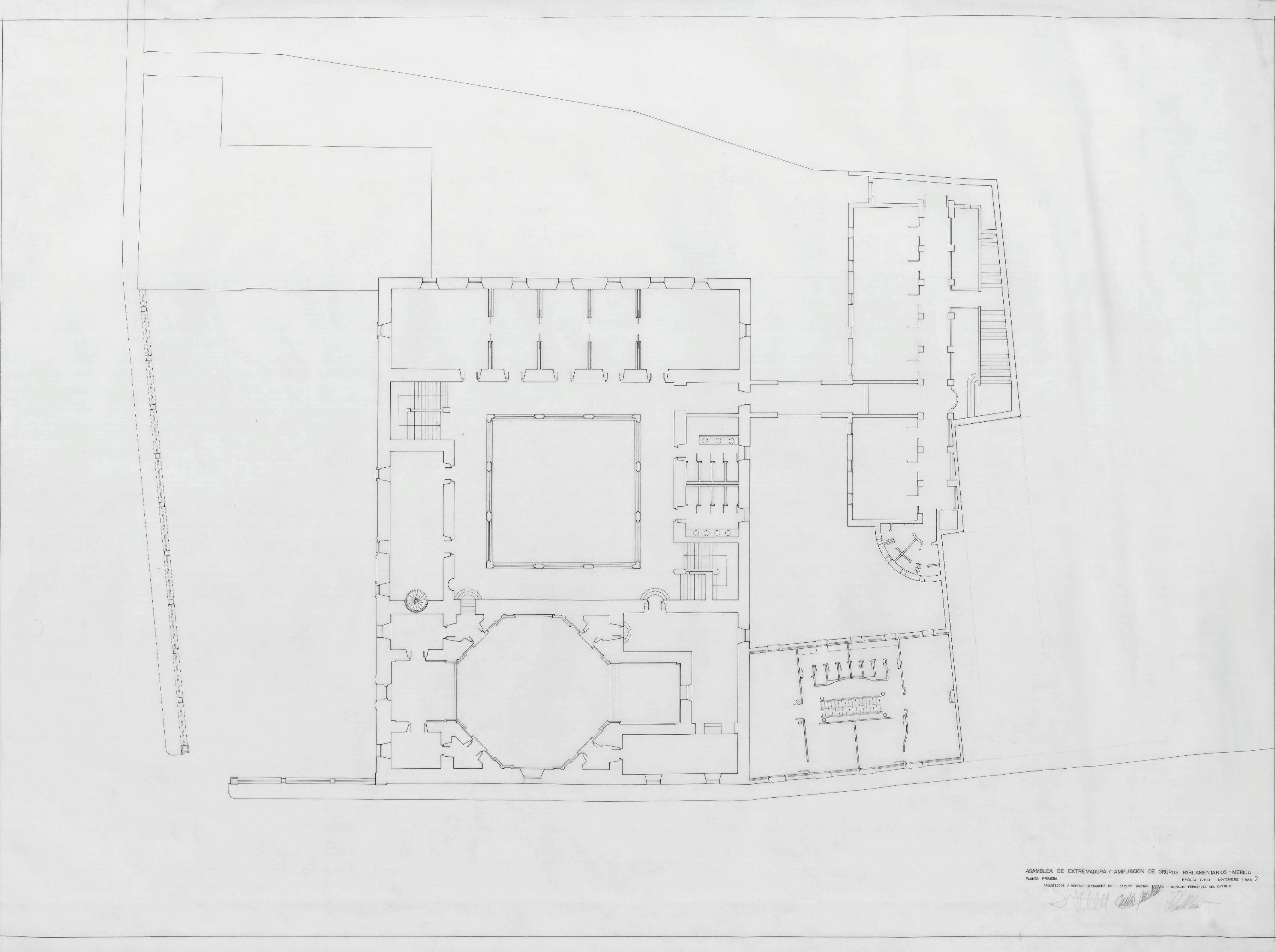
ASAMBLEA DE EXTREMADURA PROYECTO DE REHABILITACIÓN DEL ANTIGUO HOSPITAL DE S. JUAN DE DIOS PARA SEDE DE LA ASAMBLEA: PLANTA PRIMERA Pone en sello " Asamblea de Extremadura Ampliación de Grupos Parlamentarios" Distribución general. Sin cotas ni notas. Firmado
|
|
|
|
ASAMBLEA DE EXTREMADURA PROYECTO DE REHABILITACIÓN DEL ANTIGUO HOSPITAL DE S. JUAN DE DIOS PARA SEDE DE LA ASAMBLEA: PLANTA PRIMERA Pone en sello " Asamblea de Extremadura Ampliación de Grupos Parlamentarios" Distribución general. Sin cotas ni notas. Firmado
Fechas extremas
1986, enero, 1
Signatura
PLM ARCH 4 404 / 89
Tipología documental
Plano
Signatura digital
Nº de Imagen: 01234 Nº de Disco TIFF: 0038 Nº de Disco JPEG: 0001 Nº de Disco DJVU: 0001
ASAMBLEA DE EXTREMADURA PROYECTO DE REHABILITACIÓN DEL ANTIGUO HOSPITAL DE S. JUAN DE DIOS PARA SEDE DE LA ASAMBLEA: PLANTA PRIMERA Pone en sello " Asamblea de Extremadura Ampliación de Grupos Parlamentarios" Distribución general. Sin cotas ni notas. Firmado
|