|
Instituto del Patrimonio Cultural de España
»
Planoteca
»
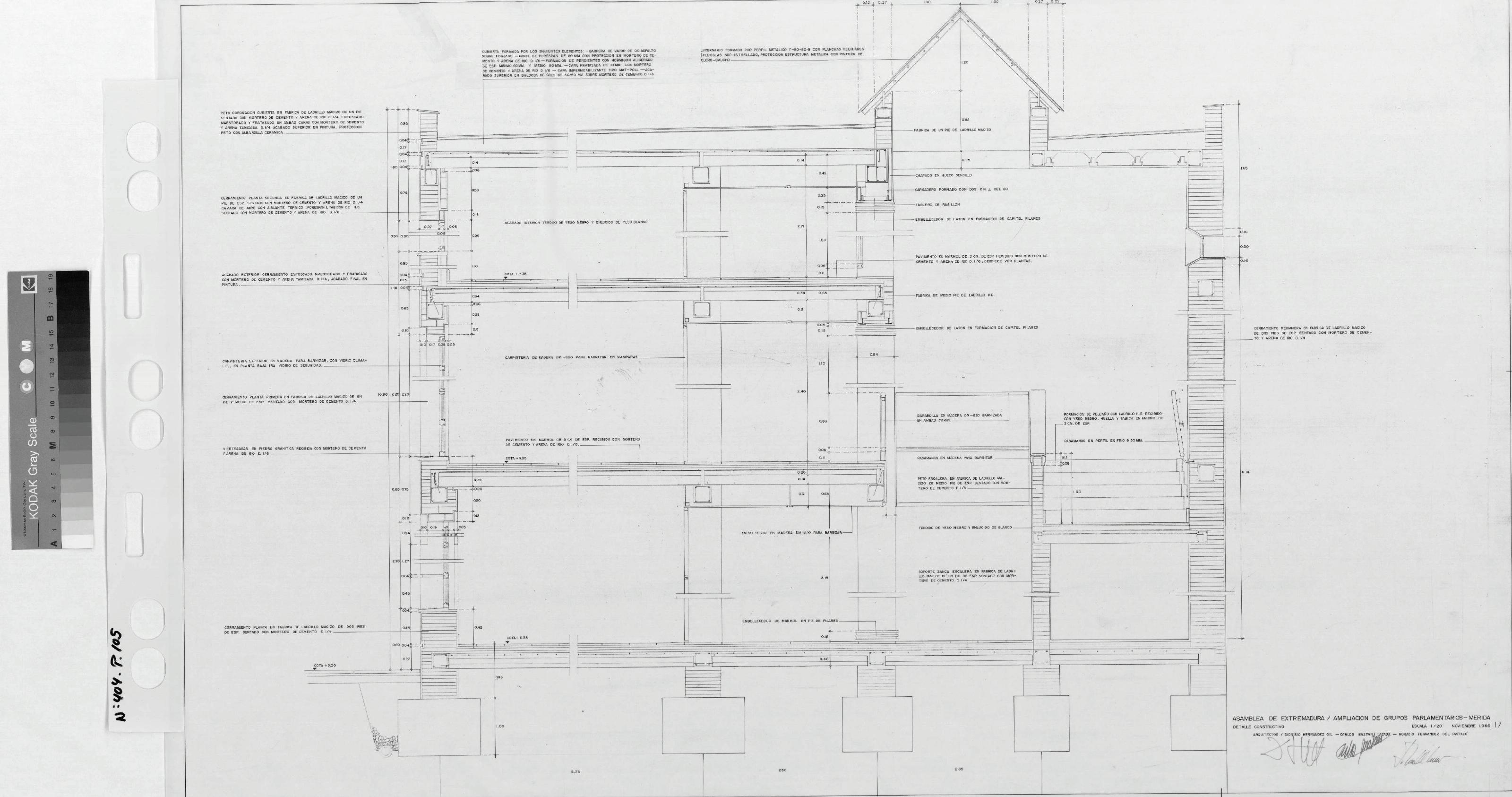
ASAMBLEA DE EXTREMADURA PROYECTO DE REHABILITACIÓN DEL ANTIGUO HOSPITAL DE S. JUAN DE DIOS PARA SEDE DE LA ASAMBLEA: DETALLE CONSTRUCTIVO Pone en sello " Asamblea de Extremadura Ampliación de Grupos Parlamentarios" Sección con profusión de cotas y notas sobre acabados Con cotas y notas. Sin firmar
|
|
|
|
ASAMBLEA DE EXTREMADURA PROYECTO DE REHABILITACIÓN DEL ANTIGUO HOSPITAL DE S. JUAN DE DIOS PARA SEDE DE LA ASAMBLEA: DETALLE CONSTRUCTIVO Pone en sello " Asamblea de Extremadura Ampliación de Grupos Parlamentarios" Sección con profusión de cotas y notas sobre acabados Con cotas y notas. Sin firmar
Fechas extremas
1986, enero, 1
Signatura
PLM ARCH 4 404 / 105
Tipología documental
Plano
Signatura digital
Nº de Imagen: 01249 Nº de Disco TIFF: 0039 Nº de Disco JPEG: 0001 Nº de Disco DJVU: 0001
ASAMBLEA DE EXTREMADURA PROYECTO DE REHABILITACIÓN DEL ANTIGUO HOSPITAL DE S. JUAN DE DIOS PARA SEDE DE LA ASAMBLEA: DETALLE CONSTRUCTIVO Pone en sello " Asamblea de Extremadura Ampliación de Grupos Parlamentarios" Sección con profusión de cotas y notas sobre acabados Con cotas y notas. Sin firmar
|