|
Instituto del Patrimonio Cultural de España
»
Planoteca
»
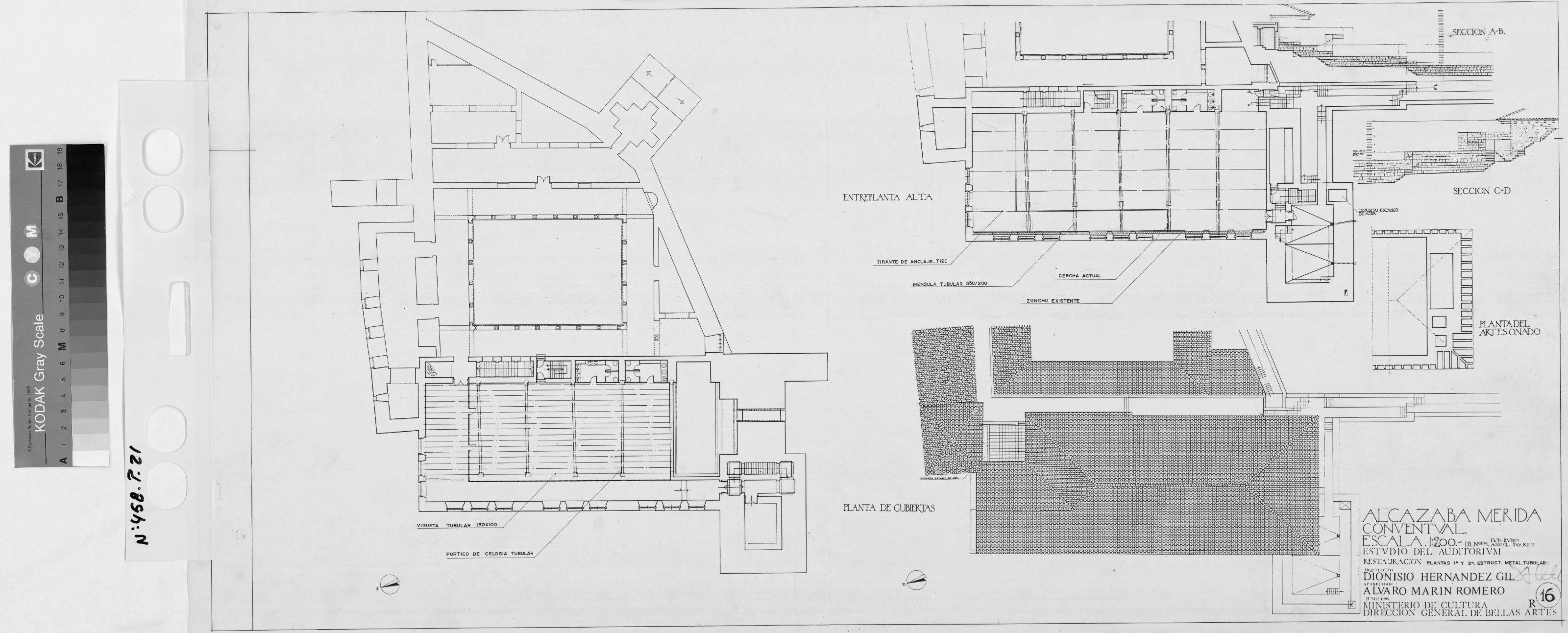
ALCAZABA DE MERIDA (Badajoz) Estudio del Auditorium: PLANTAS PRIMERA Y SEGUNDA Restauración - Estructura metálica tubular. Además de estas 2 plantas consta de una zona en planta de artesonado, Dos secciones dadas por escaleras de acceso y planta de cubierta. Con anotaciones. Firmado
|
|
|
|
ALCAZABA DE MERIDA (Badajoz) Estudio del Auditorium: PLANTAS PRIMERA Y SEGUNDA Restauración - Estructura metálica tubular. Además de estas 2 plantas consta de una zona en planta de artesonado, Dos secciones dadas por escaleras de acceso y planta de cubierta. Con anotaciones. Firmado
Fechas extremas
9999, septiembre, 9
Signatura
PLM ARCH 3 458 / 21
Tipología documental
Plano
Signatura digital
Nº de Imagen: 00702 Nº de Disco TIFF: 0017 Nº de Disco JPEG: 0001 Nº de Disco DJVU: 0001
ALCAZABA DE MERIDA (Badajoz) Estudio del Auditorium: PLANTAS PRIMERA Y SEGUNDA Restauración - Estructura metálica tubular. Además de estas 2 plantas consta de una zona en planta de artesonado, Dos secciones dadas por escaleras de acceso y planta de cubierta. Con anotaciones. Firmado
|