|
Instituto del Patrimonio Cultural de España
»
Planoteca
»
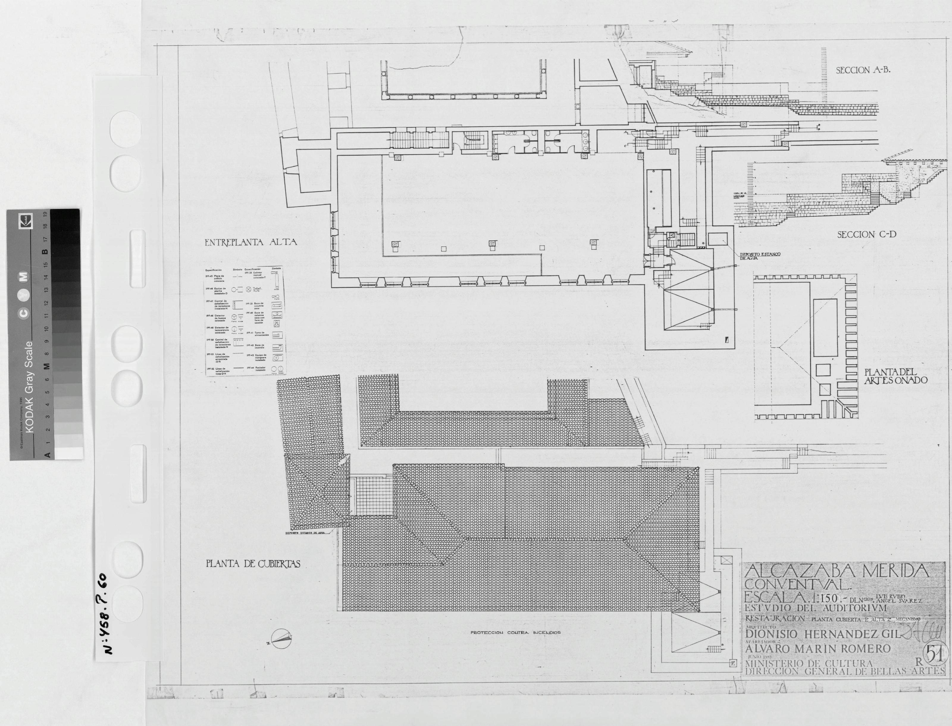
ALCAZABA DE MERIDA (Badajoz) Estudio del Auditorium: PLANTA ALTA 2ª y CUBIERTA - Restauración - PROTECCIÓN CONTRA INCENDIOS Representación de mecanismos. Con Leyenda. Firmado
|
|
|
|
ALCAZABA DE MERIDA (Badajoz) Estudio del Auditorium: PLANTA ALTA 2ª y CUBIERTA - Restauración - PROTECCIÓN CONTRA INCENDIOS Representación de mecanismos. Con Leyenda. Firmado
Fechas extremas
9999, septiembre, 9
Signatura
PLM ARCH 3 458 / 60
Tipología documental
Plano
Signatura digital
Nº de Imagen: 00737 Nº de Disco TIFF: 0018 Nº de Disco JPEG: 0001 Nº de Disco DJVU: 0001
ALCAZABA DE MERIDA (Badajoz) Estudio del Auditorium: PLANTA ALTA 2ª y CUBIERTA - Restauración - PROTECCIÓN CONTRA INCENDIOS Representación de mecanismos. Con Leyenda. Firmado
|