|
Instituto del Patrimonio Cultural de España
»
Planoteca
»
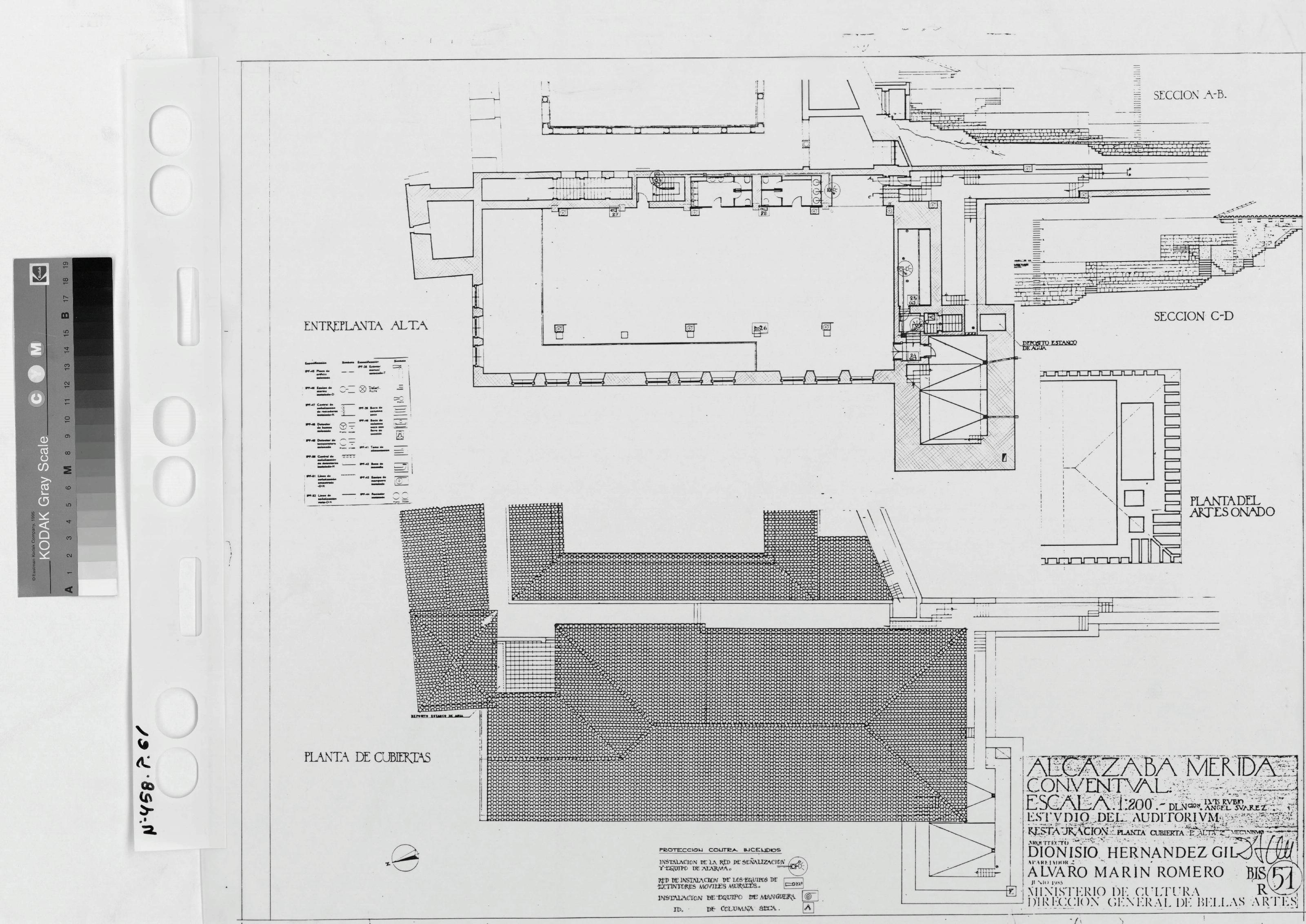
ALCAZABA DE MERIDA (Badajoz) Estudio del Auditorium: PLANTA ALTA 2ª y CUBIERTA - Restauración - PROTECCIÓN CONTRA INCENDIOS - Mecanismos Representación de mecanismos.Incluye Red de Evacuación de Emergencia y señalizaciones. Con Leyendas. Firmado
|
|
|
|
ALCAZABA DE MERIDA (Badajoz) Estudio del Auditorium: PLANTA ALTA 2ª y CUBIERTA - Restauración - PROTECCIÓN CONTRA INCENDIOS - Mecanismos Representación de mecanismos.Incluye Red de Evacuación de Emergencia y señalizaciones. Con Leyendas. Firmado
Fechas extremas
9999, septiembre, 9
Signatura
PLM ARCH 3 458 / 61
Tipología documental
Plano
Signatura digital
Nº de Imagen: 00738 Nº de Disco TIFF: 0018 Nº de Disco JPEG: 0001 Nº de Disco DJVU: 0001
ALCAZABA DE MERIDA (Badajoz) Estudio del Auditorium: PLANTA ALTA 2ª y CUBIERTA - Restauración - PROTECCIÓN CONTRA INCENDIOS - Mecanismos Representación de mecanismos.Incluye Red de Evacuación de Emergencia y señalizaciones. Con Leyendas. Firmado
|