|
Instituto del Patrimonio Cultural de España
»
Planoteca
»
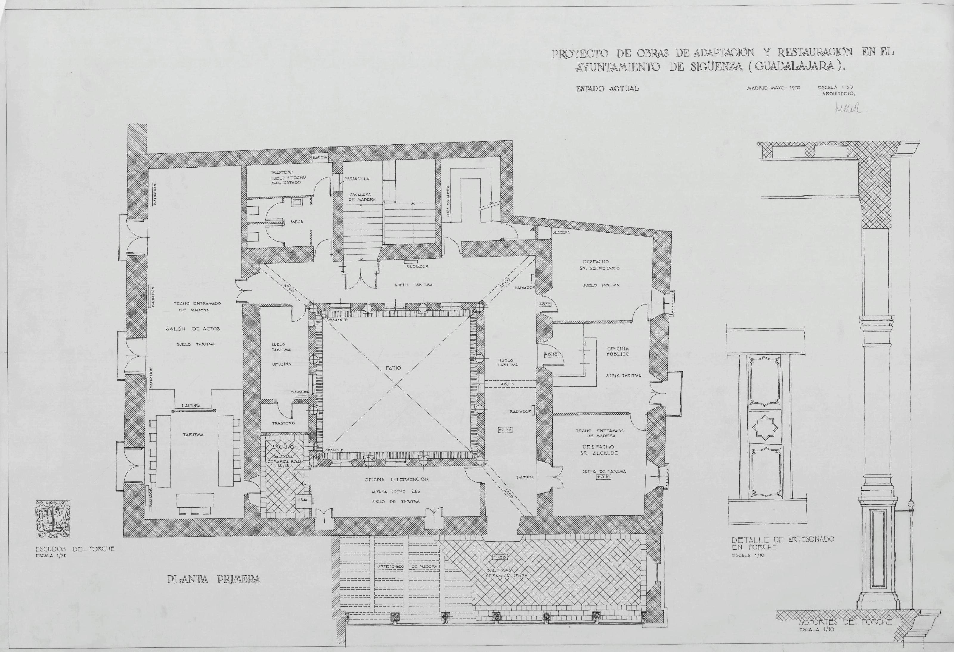
AYUNTAMIENTO DE SIGÜENZA - GUADALAJARA-: PLANTA PRIMERA , PROYECTO DE ADAPTACION Y RESTAURACION, Planta primera, plano de distribucion, con alguna cota de altura, estan marcadas todas las dependencias, plano sin cotas.
|
|
|
|
AYUNTAMIENTO DE SIGÜENZA - GUADALAJARA-: PLANTA PRIMERA , PROYECTO DE ADAPTACION Y RESTAURACION, Planta primera, plano de distribucion, con alguna cota de altura, estan marcadas todas las dependencias, plano sin cotas.
Fechas extremas
1970, enero, 1
Signatura
PLM ARCH 6 332 / 5
Tipología documental
Plano
Signatura digital
Nº de Imagen: 02766 Nº de Disco TIFF: 0079 Nº de Disco JPEG: 0001 Nº de Disco DJVU: 0001
AYUNTAMIENTO DE SIGÜENZA - GUADALAJARA-: PLANTA PRIMERA , PROYECTO DE ADAPTACION Y RESTAURACION, Planta primera, plano de distribucion, con alguna cota de altura, estan marcadas todas las dependencias, plano sin cotas.
|