|
Instituto del Patrimonio Cultural de España
»
Planoteca
»
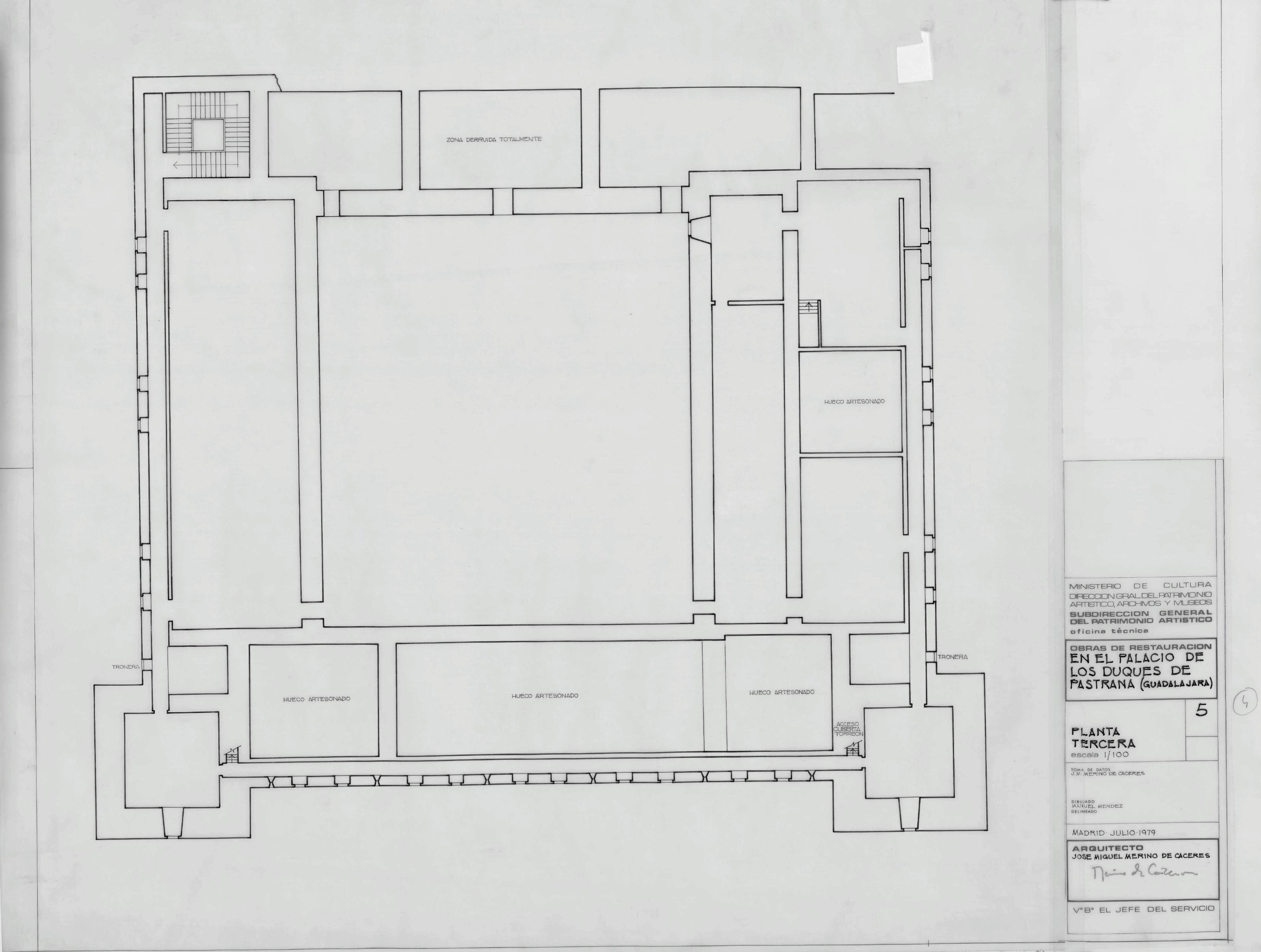
PALACIO DE LOS DUQUES DE PASTRANA - GUADALAJARA-: PLANTA TERCERA, plano de distribucion , marca las zonas donde van los huecos del artesonado, plano sin cotas,
|
|
|
|
PALACIO DE LOS DUQUES DE PASTRANA - GUADALAJARA-: PLANTA TERCERA, plano de distribucion , marca las zonas donde van los huecos del artesonado, plano sin cotas,
Fechas extremas
1979, enero, 1
Signatura
PLM ARCH 5 371 / 14
Tipología documental
Plano
Signatura digital
Nº de Imagen: 01992 Nº de Disco TIFF: 0064 Nº de Disco JPEG: 0001 Nº de Disco DJVU: 0001
PALACIO DE LOS DUQUES DE PASTRANA - GUADALAJARA-: PLANTA TERCERA, plano de distribucion , marca las zonas donde van los huecos del artesonado, plano sin cotas,
|