|
Instituto del Patrimonio Cultural de España
»
Planoteca
»
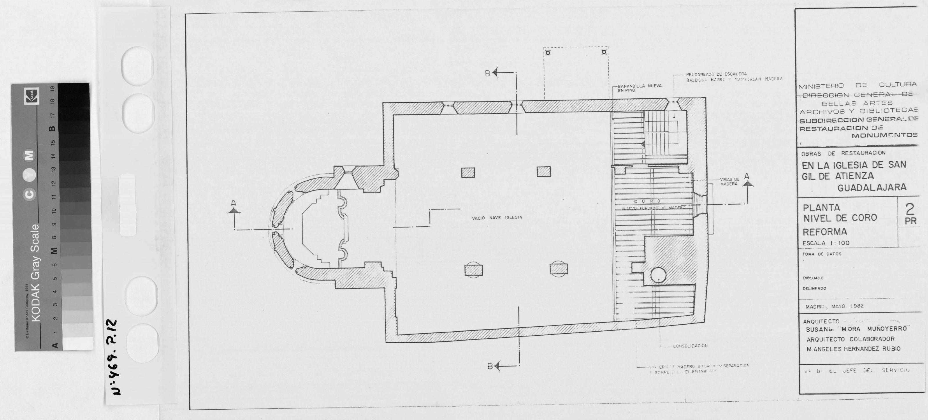
IGLESIA DE SAN GIL - ATIENZA - GUADALAJARA -: PLANTA NIVEL DE CORO, reformado señala en el plano las labores a realizar. y materiales a emplear, plano sin cotas,
|
|
|
|
IGLESIA DE SAN GIL - ATIENZA - GUADALAJARA -: PLANTA NIVEL DE CORO, reformado señala en el plano las labores a realizar. y materiales a emplear, plano sin cotas,
Fechas extremas
1982, enero, 1
Signatura
PLM ARCH 3 469 / 12
Tipología documental
Plano
Signatura digital
Nº de Imagen: 00775 Nº de Disco TIFF: 0019 Nº de Disco JPEG: 0001 Nº de Disco DJVU: 0001
IGLESIA DE SAN GIL - ATIENZA - GUADALAJARA -: PLANTA NIVEL DE CORO, reformado señala en el plano las labores a realizar. y materiales a emplear, plano sin cotas,
|